 
     
                            Захват для ПВХ-труб — специализированная навеска для бережной и быстрой обработки труб из ПВХ/ПЭ/ПП и профильных изделий без поддонов. Профилированные прижимные лапы с широкими накладками фиксируют трубу или пакет труб по дуге, исключая овальность, трещины и царапины при подъёме, переносе и укладке.
Преимущества
Аккуратный прижим с тонкой регулировкой давления — безопасно для тонкостенных труб.
Широкие, противоскользящие накладки (резина/PU) и направляющие кромки — ровная посадка, меньше перекосов.
Стабильность под нагрузкой: жёсткая рама, клапаны удержания, предсказуемая кинематика.
Быстрый цикл погрузки/разгрузки пакетов труб 6–12 м — меньше манёвров и ручного труда.
Опции: увеличенный диапазон раскрытия, сменные накладки под разные диаметры, боковое смещение для точного позиционирования.
Где особенно полезен
Производство и распределение труб, базы стройматериалов, логистика инженерных сетей, коммунальные службы.
 
                             
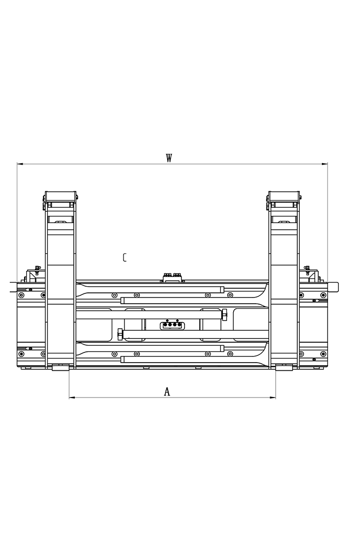
                            | Артикул | Г/п, кг | Центр тяж., мм | Класс каретки | Диап. раскр. A, мм | Длина вил L, мм | Шир. пьедестала w, мм | Прод. пр-во плиты H, мм | Выс. подъема H2, мм | Выс. опускания H1, мм | Q, мм | Толщ. ET, мм | Гор. центр тяж. HCG, мм | Вес, кг | Г/п погруз., т | 
| QY20G-B2 | 2000 | 500 | III | 1530-3550 | 1120 | 2240 | 1045 | 2015 | 1535 | 75 | 505 | 425 | 1420 | 3-4.5 | 
| QY20G-B3 | 2000 | 500 | III | 1300-3800 | 1250 | 2520 | 1170 | 2040 | 1640 | 75 | 510 | 520 | 1500 | 3-4.5 | 
| QY20G-C1 | 2000 | 500 | IV | 2440-5550 | 1100 | 2640 | 1160 | 1970 | 1720 | 130 | 510 | 520 | 2220 | 5-7 |