Захват для картонных коробок серии D - Noblelift-Belarus.by
Корзина (0)
Выбрать конфигурацию
Модель:
серия D
Артикул:
Выбрать параметры навесного
Доставка
Мы готовы помочь в организации доставки груза надежной транспортной компанией по всей Беларуси!
При оформлении доставки согласуйте с вашим менеджером:
Адрес и дату доставки;
Вид транспорта;
Стоимость;
Способы оплаты;
Где посмотреть
Склад: 223060, Минская область, Минский район, Новодворский с-с, район д.Большое Стиклево 30/2
Финальная цена
Формируется в зависимости от выбора комплектующих. Более подробную цену можно узнать оставив заявку на создание коммерческого предложения. Наши менеджеры оперативно обработают ваш запрос и свяжутся с вами для уточнения деталей

Захват для картонных коробок серии D

Захват для картонных коробок серии D — решение для безпаллетной обработки коробок: широкие плиты мягко прижимают груз, позволяя быстро снимать, переносить и укладывать штабели без деформации тары. Используется на складах, в производстве напитков, бытовой техники и электроники.

Что получает склад

  • Быстрый, безопасный цикл без ручной перекладки и паллет.

  • Равномерный прижим — меньше повреждений и брака.

  • Предсказуемая кинематика и хорошая обзорность для оператора.

Диапазон и совместимость
Серия охватывает популярные задачи по габаритам и массе: раскрытие ≈400–2400 мм, крупные плиты высотой 1200 мм и длиной 1220–1480 мм, ширина рамы ≈1040–1600 мм (зависит от версии). Грузоподъёмность типовых модификаций — 1,2–1,36 т; крепление к каретке FEM II–III.

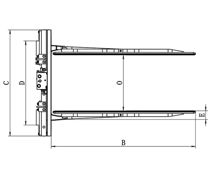
Основные технические параметры
параметры навесного оборудования
Модель:
Артикул Г/п, кг Центр тяж., мм Класс каретки Диап. раскр. O, мм Выс. лап A, мм Длина лап B, мм Шир. рамы C, мм Межкрюк. расст. D, мм Толщ. лап E, мм Вес, кг Толщ. ET, мм Верт. центр тяж. VCG, мм Гор. центр тяж. HCG, мм Г/п погруз., т
ZX12D-A1 1200 600 II 400-1570 1200 1220 1040 825 90 765 117 368 429 2-2.5
ZX14D-A1 1360 700 II 560-1940 1200 1420 1040 825 90 855 117 371 504 2-2.5
ZX14D-A2 1360 700 II 760-2140 1200 1420 1040 825 90 870 117 369 497 2-2.5
ZX14D-A3 1360 700 II 565-1945 1200 1220 1040 825 90 780 117 367 424 2-2.5
ZX14D-A4 1360 700 II 565-1945 1200 1220 1040 825 90 715 117 352 396 2-2.5
ZX14D-B2 1360 700 III 560-1920 1200 1420 1040 825 90 740 117 345 384 3-4.5
ZX14D-B3 1360 700 III 560-1940 1200 1420 1040 825 90 880 117 367 506 3-4.5
ZX14D-B4 1360 700 III 520-2400 1200 1480 1600 970 90 970 117 365 505 3-4.5
ZX14D-B5 1360 700 III 500-2100 1200 1480 1400 960 90 935 117 368 512 3-4.5
*Данные согласно VDI 2198. Производитель оставляет право вносить изменения в конструкцию техники.
Select the fields to be shown. Others will be hidden. Drag and drop to rearrange the order.
  • Image
  • Additional information
Click outside to hide the comparison bar
Compare