 
     
                            Целлюлозный захват для кип (тюков) — специализированная навеска для бережной обработки тюков целлюлозы, бумаги и картона, а также текстиля, вторсырья и сельхозтюков без паллет. Широкие лапы фиксируют груз без смятия кромок и сердечника, ускоряя погрузку, разгрузку и укладку на пол, стеллаж или в кузов.
Ключевые плюсы для склада и производства: большой диапазон раскрытия до ≈3170 мм — подходит для крупногабаритных кип, высокая грузоподъёмность модификаций до 6,5 т (центр нагрузки 800 мм) — стабильная работа с тяжёлыми рулонами и тюками. Крюковый тип монтажа упрощает установку и обслуживание.
 
                             
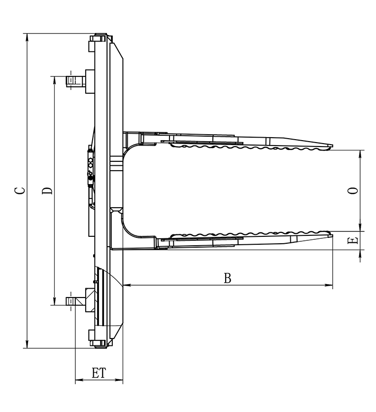
                            | Артикул | Г/п, кг | Центр тяж., мм | Класс каретки | Диап. раскр. O, мм | Выс. лап A, мм | Длина лап B, мм | Шир. рамы C, мм | Межкрюк. расст. D, мм | Толщ. лап E, мм | Расст. м/у верх. и ниж. отверст. для крюка F, мм | Монтаж. разм. G, мм | Диам. крюка ч/з вал H, мм | Вес, кг | Толщ. ET, мм | Верт. центр тяж. VCG, мм | Гор. центр тяж. HCG, мм | Г/п погруз., т | 
| ZB65G-X1-01 | 6500 | 800 | Крюковый монтаж | 600-3170 | 585 | 1590 | 2420 | 1760 | 105 | 46 | 775 | 76 | 2600 | 297 | 380 | 493 | 12 | 
| ZB65G-X2 | 6500 | 800 | Крюковый монтаж | 600-3170 | 585 | 1590 | 2420 | 1200 | 105 | 85 | 880 | 86 | 2640 | 395 | 391 | 513 | 12 |