 
     
                            Захват-клетка для блоков — решение для быстрой и аккуратной обработки пакетов кирпича, газобетона, плитки и других твёрдых, обычно кубических грузов без поддонов. Высокие лапы «клеткой» охватывают пакет и равномерно распределяют усилие, что снижает сколы кромок и ускоряет перенос, укладку и отгрузку на площадке, в кузов или на стеллаж.
Почему это удобно
Захват целого пакета за один цикл → меньше манёвров и простоев.
Равномерный прижим и жёсткая рама — стабильная геометрия под нагрузкой, аккуратная подача.
Работа без паллет уменьшает затраты на тару и упрощает логистику.
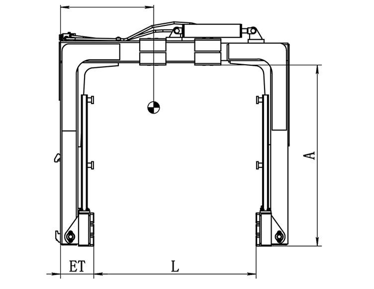
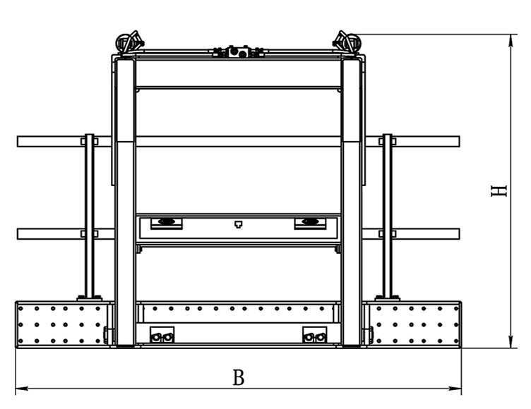
Диапазон и совместимость
В линейке — модели грузоподъёмностью 1,5–2,0 т при центре нагрузки 650 мм, для каретки FEM класс III, с раскрытием 700–1000 или 1100–1400 мм. Типовые размеры: высота лап 1250 мм, общая высота 1550 мм, длина лап 1250–2170 мм, толщина навески ET 235 мм. Масса навески ~720–950 кг; рекомендуемая грузоподъёмность погрузчика — 3–4,5 т.
 
                             
                            | Артикул | Г/п, кг | Центр тяж., мм | Класс каретки | Диап. раскр., мм | Выс. лап A, мм | Общ. выс. H, мм | Длина лап B, мм | Толщ. ET, мм | Гор. центр тяж. HCG, мм | Вес, кг | Г/п погруз., т | 
| ZK15T-B1 | 1500 | 650 | III | 1100-1400 | 1250 | 1550 | 1250 | 235 | 950 | 800 | 3-4.5 | 
| ZK15T-B2 | 1500 | 650 | III | 700-1000 | 1250 | 1550 | 1250 | 235 | 700 | 720 | 3-4.5 | 
| ZK20T-B1 | 2000 | 650 | III | 1100-1400 | 1250 | 1550 | 2170 | 235 | 950 | 950 | 3-4.5 | 
| ZK20T-B2 | 2000 | 650 | III | 700-1000 | 1250 | 1550 | 2100 | 235 | 950 | 835 | 3-4.5 |