 
     
                            Поворотный толкатель — навеска «два в одном» для работы с грузами на паллетах и без них: аккуратно захватывает, поворачивает и плавно выталкивает мешки, короба и штучные грузы. Идеален для партий зерна, цемента, сахара, консервов и т. п., где важны чистая выгрузка и быстрый цикл без лишних манёвров.
Серия включает популярные конфигурации под каретки классов III–IV с типовой грузоподъёмностью 1,5–2,0 т при центре нагрузки 600 мм. Рабочий ход толкателя — порядка 1,27–1,40 м (в зависимости от модификации), что обеспечивает уверенную подачу на платформу, в кузов или контейнер.
Что получаете
Быструю и контролируемую разгрузку без рывков и рассыпаний.
Меньше повреждений тары и сниженные трудозатраты.
Жёсткую раму и надёжную кинематику для интенсивных смен.
 
                             
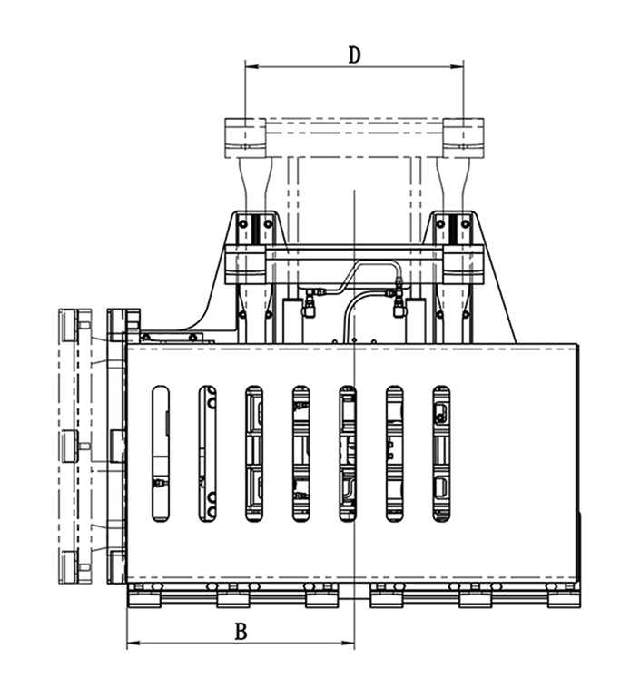
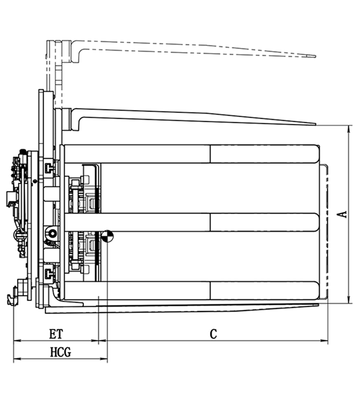
                            | Артикул | Г/п, кг | Центр тяж., мм | Класс каретки | Диап. раскр. A, мм | Диап. регул. B, мм | Раб. диап. C, мм | Расст. м/у вилами D, мм | Толщ. ET, мм | Гор. центр тяж. HCG, мм | Вес, кг | Г/п погруз., т | 
| XT15SD-B1 | 1500 | 600 | III | 950-1600 | 630-730 | 1270 | 600 | 472 | 415 | 1425 | 3-4.5 | 
| XT15SD-B3 | 1500 | 600 | III | 600-1000 | 515-615 | 1270 | 575 | 472 | 415 | 1370 | 3-4.5 | 
| XT15SD-B4-01 | 1500 | 600 | III | 810-1410 | 680-780 | 1270 | 675 | 472 | 415 | 1430 | 3-4.5 | 
| XT15SD-B5 | 1500 | 600 | III | 570-970 | 560-660 | 1270 | 675 | 472 | 415 | 1410 | 3-4.5 | 
| XT15SD-B5-01 | 1500 | 600 | III | 810-1410 | 680-780 | 1270 | 675 | 472 | 415 | 1410 | 3-4.5 | 
| XT15SD-B6-01 | 1500 | 600 | III | 705-1205 | 680-780 | 1270 | 675 | 472 | 415 | 1420 | 3-4.5 | 
| XT15SD-B7 | 1500 | 600 | III | 950-1600 | 630-730 | 1270 | 550 | 472 | 415 | 1400 | 3-4.5 | 
| XT15SD-B8 | 1500 | 600 | III | 750-1250 | 600-750 | 1270 | 675 | 472 | 415 | 1420 | 3-4.5 | 
| XT15SD-B9 | 1500 | 600 | III | 750-1250 | 560-660 | 1270 | 575 | 472 | 415 | 1400 | 3-4.5 | 
| XT15SD-B10 | 1500 | 600 | III | 780-1280 | 750-850 | 1400 | 900 | 505 | 430 | 1560 | 3-4.5 | 
| XT15SD-B11 | 1500 | 600 | III | 590-990 | 600-750 | 1270 | 675 | 472 | 415 | 1415 | 3-4.5 | 
| XT15SD-B12 | 1500 | 600 | III | 930-1430 | 550-630 | 1270 | 500 | 472 | 415 | 1456 | 3-4.5 | 
| XT20S-B1 | 2000 | 600 | III | 820-1370 | 750-850 | 1300 | 750 | 530 | 470 | 1730 | 4-5 | 
| XT20S-B2 | 2000 | 600 | III | 895-1445 | 725-875 | 1400 | 960 | 566 | 491 | 1980 | 4-5 | 
| XT20S-B3 | 2000 | 600 | III | 770-1320 | 570-720 | 1300 | 750 | 530 | 470 | 1715 | 4-5 | 
| XT20S-B4 | 2000 | 600 | III | 945-1495 | 800-950 | 1400 | 900 | 566 | 491 | 1980 | 4-5 | 
| XT20S-C1 | 2000 | 600 | IV | 820-1370 | 770-870 | 1300 | 750 | 545 | 470 | 1800 | 5-7 |