 
     
                            Быстросъёмный Push-Pull — навеска для работы с грузами без поддонов на подкладочных листах (slip-sheet). Она быстро ставится на вилы и так же быстро снимается, позволяя за минуты перейти от «обычных» паллет к безподдонной обработке и обратно. Это снижает расходы на тару и ускоряет погрузочно-разгрузочные операции.
Что получает склад
Работа с slip-sheet вместо паллет → меньше затрат и больше полезного объёма в кузове/контейнере
Быстрая смена режимов благодаря быстросъёмному креплению на вилы (Quick Fork Mount-подход)
Плавная, надёжная механика: износостойкие плиты, пантограф, «хват» и передняя плита с хорошей обзорностью; упрощённая гидросхема, два комплекта цилиндров под контролем перепускного клапана
 
                             
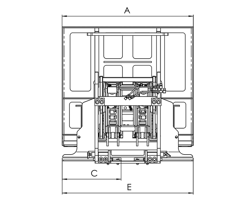
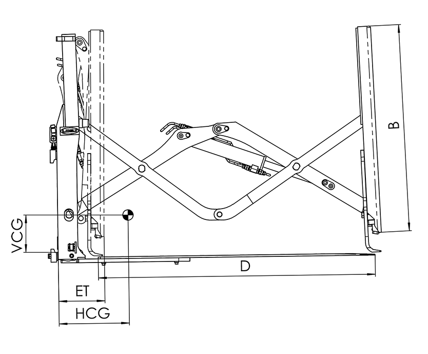
                            | Артикул | Г/п, кг | Центр тяж., мм | Класс каретки | Раб. диап. F, мм | Выс.xШир. толкателя BxA, мм | Выс.xШир. плиты DxC, мм | Наруж. пр-во плиты E, мм | Толщ. ET, мм | Верт. центр тяж. VCG, мм | Гор. центр тяж. HCG, мм | Вес, кг | Г/п погруз., т | 
| TL16L-A1 | 1600 | 500 | II | 1230 | 920×1014 | 1235×455 | 1012 | 190 | 300 | 270 | 360 | 1-2.5 | 
| TL20L-B1 | 2000 | 500 | III | 1230 | 920×1014 | 1235×455 | 1012 | 215 | 315 | 295 | 410 | 3-4.5 | 
| TL16L-A2 | 1600 | 500 | II | 1230 | 920×1014 | 1320×455 | 1012 | 275 | 280 | 296 | 435 | 1-2.5 | 
| TL16L-A4 | 1600 | 500 | II | 1350 | 975×1014 | 1445×455 | 1012 | 285 | 290 | 320 | 500 | 1-2.5 | 
| TL20L-B2 | 2000 | 500 | III | 1230 | 920×1014 | 1330×455 | 1012 | 295 | 285 | 300 | 495 | 3-4.5 | 
| TL20L-B4 | 2000 | 500 | III | 1230 | 920×1014 | 1330×1012 | 1012 | 295 | 285 | 300 | 505 | 3-4.5 | 
| TL20L-B6 | 2000 | 500 | III | 1230 | 1120×1400 | 1330×650 | 1400 | 295 | 295 | 320 | 495 | 3-4.5 | 
| TL20L-B8 | 2000 | 500 | III | 1230 | 1050×1300 | 1330×598 | 1298 | 295 | 310 | 315 | 500 | 3-4.5 | 
| TL20L-B10 | 2000 | 650 | III | 1350 | 1120×1500 | 1450×699 | 1500 | 300 | 300 | 350 | 650 | 3-4.5 | 
| TL25L-B1 | 2500 | 700 | III | 1400 | 1120×1400 | 1500×700 | 1500 | 305 | 320 | 330 | 780 | 3-4.5 |