Двухцилиндровый опрокидыватель - Noblelift-Belarus.by
Корзина (0)
Опрокидыватели Двухцилиндровый
Выбрать конфигурацию
Модель:
Два цилиндра
Артикул:
Выбрать параметры навесного
Доставка
Мы готовы помочь в организации доставки груза надежной транспортной компанией по всей Беларуси!
При оформлении доставки согласуйте с вашим менеджером:
Адрес и дату доставки;
Вид транспорта;
Стоимость;
Способы оплаты;
Где посмотреть
Склад: 223060, Минская область, Минский район, Новодворский с-с, район д.Большое Стиклево 30/2
Финальная цена
Формируется в зависимости от выбора комплектующих. Более подробную цену можно узнать оставив заявку на создание коммерческого предложения. Наши менеджеры оперативно обработают ваш запрос и свяжутся с вами для уточнения деталей

Двухцилиндровый опрокидыватель

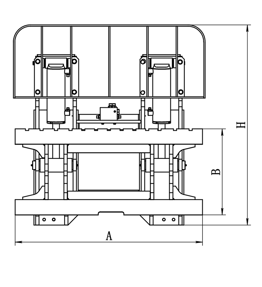
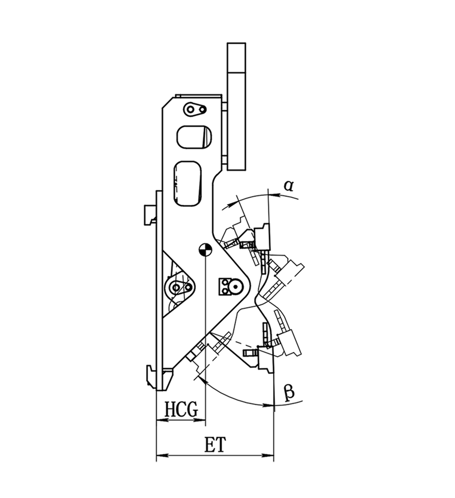
Двухцилиндровый опрокидыватель — навеска для быстрых и чистых разгрузок, когда контейнер нужно аккуратно опрокинуть и дозировать подачу материала. Два силовых цилиндра дают стабильный, синхронный наклон под нагрузкой и хорошую управляемость при работе с тяжёлой или неравномерно распределённой тарой. Узел обеспечивает большой диапазон движения — до 45° вперёд и 25° назад, что помогает полностью «вычистить» ёмкость и надёжно зафиксировать груз при транспортировке.

В линейке представлены решения под каретки FEM/ISO, чаще класса III, с типовыми конфигурациями на 3,5–4,5 т при центре нагрузки 500–600 мм. Такая компоновка ускоряет цикл, уменьшает потери материала и снижает риск повреждений тары и стеллажей.

Основные технические параметры
параметры навесного оборудования
Модель:
Артикул Г/п, кг Центр тяж., мм Класс каретки Класс вил Блок цилиндров Шир. кар. A, мм Выс. кар. B, мм Общ. выс., мм Наклон вниз/вверх Толщ. ET, мм Гор. центр тяж. HCG, мм Вес, кг Г/п погруз., т
QF35F-B1-02 3500 500 III III Двойной 1100 506 1172 45°/25° 392 165 360 3-4.5
QF45F-B1-01 4500 600 III III Двойной 1800 506 1172 45°/25° 392 193 680 3-4.5
QF45F-B2-01 4500 600 III III Двойной 1126 506 1172 45°/25° 392 132 510 3-4.5
QF45F-B3-01 4500 600 III III Двойной 1500 506 1172 45°/25° 392 190 670 3-4.5
QF45F-B4-01 4500 600 III III Двойной 1380 506 1172 45°/25° 392 190 600 3-4.5
QF50F-C1-01 5000 600 IV III Двойной 1800 506 1172 45°/25° 392 193 690 5-7
QF50F-C2-01 5000 600 IV IV Двойной 1785 634 1210 45°/25° 427 210 785 5-7
*Данные согласно VDI 2198. Производитель оставляет право вносить изменения в конструкцию техники.
Select the fields to be shown. Others will be hidden. Drag and drop to rearrange the order.
  • Image
  • Additional information
Click outside to hide the comparison bar
Compare