 
     
                             
                             
                             
                             
                             
                            SWB-130S – Самоходный штабелёр с раздвижными опорными консолями для многоярусного хранения
Модель SWB-130S создана для работы в зонах, где требуется подъём паллет на большие высоты – до 3600 мм. Благодаря усиленной мачте и улучшенной гидравлической системе, штабелёр обеспечивает стабильность груза на максимальной высоте, предотвращая его раскачивание и снижая риск повреждения.
SWB-130S сочетает в себе все достоинства базовой модели, но дополнен усиленной конструкцией, которая позволяет безопасно работать с высокими стеллажами. Компактные размеры и удобное управление сохраняют маневренность, а продвинутая система плавного подъёма и опускания гарантирует бережное обращение с товаром.
 
                                                
                        
                     
                             
                            | Основные параметры | 1.2 | Модель | SWB-130 | SWB-130S | SWB-130D | |
| 1.3 | Привод: электрический (тип: аккумулятор, сеть,…), дизельный, бензиновый, газовый | Электрический (аккумулятор) | Электрический (аккумулятор) | Электрический (аккумулятор) | ||
| 1.4 | Положение оператора | Пеший | Пеший | Пеший | ||
| 1.5 | Грузоподъемность | Q (кг) | 1300 | 1270 | 1300 | |
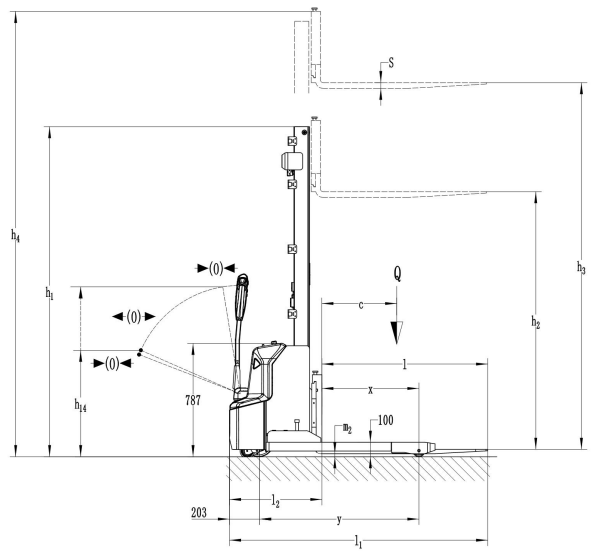
| 1.6 | Центр загрузки | c (мм) | 600 | 600 | 600 | |
| 1.8 | Расстояние от центра оси до вил | x (мм) | 710 | 674 | 758/675 * | |
| 1.9 | Колесная база | y (мм) | 1097 | 1111 | 1197/1115 * | |
| Массы | 2.1 | Масса | кг | 715 (670) | 880 (835) | 790 (745) | 
| 2.2 | Нагрузка на переднюю/заднюю ось с грузом | кг | 580/1435 (560/1410) | 655/1495 (635/1470) | 695/1395 (675/1370) | |
| 2.3 | Нагрузка на переднюю/заднюю ось без груза | кг | 500/215 (480/190) | 615/265 (595/240) | 540/250 (520/225) | |
| Колеса, ходовая часть | 3.1 | Тип колес | Полиуретан (PU) | Полиуретан (PU) | Полиуретан (PU) | |
| 3.2 | Размер передних (ведущих) колес | Ø210х75 | Ø210х75 | Ø210х75 | ||
| 3.3 | Размер задних колес | Ø84х93 | Ø84х93 | Ø84х93 | ||
| 3.4 | Дополнительные колеса | Ø100х50 | Ø100х50 | Ø100х50 | ||
| 3.5 | Количество колес спереди/сзади (х-ведущие) | 1х+1/2 | 1х+1/2 | 1х+1/4 | ||
| 3.6 | Колея передних колес | b10 (мм) | 550 | 520 | 550 | |
| 3.7 | Колея задних колес | b11 (мм) | 400/515 | — | 390/505 | |
| Размеры | 4.2 | Габаритная высота (min) | h1 (мм) | 2280 | 2290 | 2320 | 
| 4.3 | Свободный подъем | h2 (мм) | 1800 | 1800 | 1800 | |
| 4.4 | Высота подъема | h3 (мм) | 3510 | 3510 | 3510 | |
| 4.5 | Габаритная высота (max) | h4 (мм) | 3990 | 4055 | 4030 | |
| 4.6 | Начальный подъем | h5 (мм) | — | — | 120 | |
| 4.9 | Высота ручки (min/max) | h14 (мм) | 710/1150 | 710/1150 | 710/1150 | |
| 4.15 | Высота вил в нижнем положении | h13 (мм) | 90 | 50 | 50 | |
| 4.19 | Общая длина | l1 (мм) | 1710 | 1790 | 1762 | |
| 4.20 | Длина до фронта вил | l2 (мм) | 560 | 640 | 612 | |
| 4.21 | Общая ширина | b1 (мм) | 800 | 800/ (1181/1231/1281/1381/1481) | 800 | |
| 4.22 | Размеры вил | s/e/l (мм) | 60/180/1150 | 40/100/1150 | 60/180/1150 | |
| 4.25 | Ширина установки вил | b5 (мм) | 570/685 | 252-800 | 570/685 | |
| 4.32 | Дорожный просвет в центре базы | m2 (мм) | 24 | 40 | 24 | |
| 4.33 | Ширина прохода с паллетой 1000×1200 | Ast (мм) | 2167 | 2228 | 2247/2203 * | |
| 4.34 | Ширина прохода с паллетой 800×1200 | Ast (мм) | 2133 | 2206 | 2197/2181 * | |
| 4.35 | Радиус разворота | Wa (мм) | 1300 | 1345 | 1400/1320 * | |
| Характеристики | 5.1 | Скорость движения (с грузом/ без груза) | км/ч | 4,2/4,5 | 4,2/4,5 | 4,2/4,5 | 
| 5.2 | Скорость подъема (с грузом/ без груза) | мм/с | 100/140 | 100/140 | 110/140 | |
| 5.3 | Скорость движения вил вниз (с грузом/ без груза) | мм/с | 130/110 | 130/110 | 130/110 | |
| 5.8 | Преодолимый уклон max (с грузом/ без груза) | % | 4/10 | 4/10 | 4/10 | |
| 5.10 | Тормозная система | Электромагнитный тормоз | Электромагнитный тормоз | Электромагнитный тормоз | ||
| Параметры электрической системы | 6.1 | Мощность двигателя движения | кВт | 0,65 | 0,65 | 0,65 | 
| 6.2 | Мощность двигателя подъема | кВт | 2,2 | 2,2 | 2,2 | |
| 6.4 | Напряжение питания, номинальная емкость АКБ | В/ А∙ч | св.-кисл.: 2×12/ 106 литиевый: 24/ 100 | св.-кисл.: 2×12/ 106 литиевый: 24/ 100 | св.-кисл.: 2×12/ 106 литиевый: 24/ 100 | |
| 6.5 | Масса АКБ | кг | св.-кисл.: 2×34 литиевый: 26 | св.-кисл.: 2×34 литиевый: 26 | св.-кисл.: 2×34 литиевый: 26 | |
| 6.6 | Потребление энергии в соотв. с циклом VDI | кВт∙ч/ч | 0,68 | 0,70 | 0,69 | |
| Другое | 8.1 | Тип управления ходом | DC | DC | DC | |
| 8.4 | Уровень шума | дБ(А) | <70 | <70 | <70 | 
| Высота подъема h3 (мм) | Высота свободного подъема h2 (мм) | Габаритная высота мачты минимальная h1 (мм) | Высота вил максимальная h3 + h13 (мм) | Габаритная высота мачты максимальная h4 (мм) | |
| DX (с функцией свободного подъема (FFL) | 2510 | 1300 | 1790 | 2560 | 3055 | 
| 2810 | 1450 | 1940 | 2860 | 3355 | |
| 3110 | 1600 | 2090 | 3160 | 3655 | |
| 3510 | 1800 | 2290 | 3560 | 4055 | 
 
                                 
                                 
                                 
                                