 
     
                             
                             
                             
                             
                             
                            Самоходные штабелеры с противовесом Noblelift PS12 /15CB-C – это современная техника для складов и логистических комплексов, где важны надежность, безопасность и высокая производительность. Данная модель совмещает функции штабелера и компактного электропогрузчика, что позволяет не только перевозить грузы, но и поднимать их на значительную высоту.
В зависимости от модификации, техника способна работать с грузами весом до 1200 или 1500 кг, что делает её универсальным решением для большинства складских задач. Мачта с высоким диапазоном подъёма обеспечивает эффективное размещение паллет на многоуровневых стеллажах, а компактные размеры позволяют работать даже в ограниченных пространствах.
Модель PS12/15CB-C оснащена мощным электроприводом, системой плавного старта и точным управлением, что гарантирует комфорт оператора и безопасность при маневрировании. Надежная аккумуляторная батарея обеспечивает продолжительное время работы без подзарядки, а доступ к элементам конструкции делает обслуживание быстрым и простым.
 
                             
                            | Основные параметры | 1.2 | Модель | PS12CB-C | PS15CB-C | |
| 1.3 | Привод: электрический (тип: аккумулятор, сеть,…), дизельный, бензиновый, газовый | Электрический (аккумулятор) | Электрический (аккумулятор) | ||
| 1.4 | Положение оператора | Пеший/Стоя | Пеший/Стоя | ||
| 1.5 | Грузоподъемность | Q (кг) | 1200 | 1500 | |
| 1.6 | Центр загрузки | c (мм) | 500 | 500 | |
| 1.8 | Расстояние от центра оси до вил | x (мм) | 135 | 135 | |
| 1.9 | Колесная база | y (мм) | 1410 | 1550 | |
| Массы | 2.1 | Масса | кг | 1850 | 2130 | 
| 2.2 | Нагрузка на переднюю/заднюю ось с грузом | кг | 400/2650 | 450/3180 | |
| 2.3 | Нагрузка на переднюю/заднюю ось без груза | кг | 900/950 | 1020/1110 | |
| Колеса, ходовая часть | 3.1 | Тип колес | Полиуретан (PU) | Полиуретан (PU) | |
| 3.2 | Размер передних (ведущих) колес | Ø230х70 | Ø230х70 | ||
| 3.3 | Размер задних колес | Ø230х100 | Ø230х100 | ||
| 3.5 | Количество колес спереди/сзади (х-ведущие) | 1х/2 | 1х/2 | ||
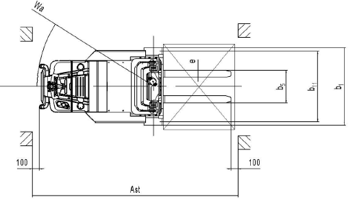
| 3.7 | Колея задних колес | b11 (мм) | 988 | 988 | |
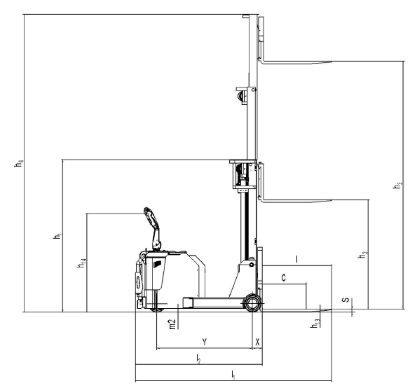
| Размеры | 4.1 | Наклон мачты/каретки вил вперед/назад | α/β (º) | / | 1,5/4 | 
| 4.2 | Габаритная высота (min) | h1 (мм) | 2400 | 2100 | |
| 4.3 | Свободный подъем | h2 (мм) | — | 1500 | |
| 4.4 | Высота подъема | h3 (мм) | 3600 | 4500 | |
| 4.5 | Габаритная высота (max) | h4 (мм) | 4200 | 5395 | |
| 4.9 | Высота ручки (min/max) | h14 (мм) | 923/1358 | 923/1358 | |
| 4.15 | Высота вил в нижнем положении | h13 (мм) | 40 | 40 | |
| 4.19 | Общая длина | l1 (мм) | 2790 | 2927 | |
| 4.20 | Длина до фронта вил | l2 (мм) | 1840 | 1977 | |
| 4.21 | Общая ширина | b1 (мм) | 1090 | 1090 | |
| 4.22 | Размеры вил | s/e/l (мм) | 35/100/950 | 35/100/950 | |
| 4.25 | Ширина установки вил | b5 (мм) | 220-760 | 220-760 | |
| 4.32 | Дорожный просвет в центре базы | m2 (мм) | 52 | 52 | |
| 4.33 | Ширина прохода с паллетой 1000×1200 | Ast (мм) | 2991 | 3125 | |
| 4.34 | Ширина прохода с паллетой 800×1200 | Ast (мм) | 3076 | 3210 | |
| 4.35 | Радиус разворота | Wa (мм) | 1738 | 1872 | |
| Характеристики | 5.1 | Скорость движения (с грузом/ без груза) | км/ч | 5,5/6,0 | 5,5/6,0 | 
| 5.2 | Скорость подъема (с грузом/ без груза) | мм/с | 95/135 | 100/200 | |
| 5.3 | Скорость движения вил вниз (с грузом/ без груза) | мм/с | 100/100 | 180/180 | |
| 5.8 | Преодолимый уклон max (с грузом/ без груза) | % | 6/15 | 6/15 | |
| 5.10 | Тормозная система | Электромагнитный тормоз | Электромагнитный тормоз | ||
| Параметры электрической системы | 6.1 | Мощность двигателя движения | кВт | 1,6 | 1,6 | 
| 6.2 | Мощность двигателя подъема | кВт | 2,2 | 3,0 | |
| 6.3 | Стандарт АКБ | DIN | DIN | ||
| 6.4 | Напряжение питания, номинальная емкость АКБ | В/ А∙ч | 24/ 210 | 24/ 270 | |
| 6.5 | Масса АКБ | кг | 195 | 235 | |
| Другое | 8.1 | Тип управления ходом | AD | AD | |
| 8.4 | Уровень шума | дБ(А) | 68 | 68 | 
| Высота подъема h3 (мм) | Высота свободного подъема h2 (мм) | Габаритная высота мачты минимальная h1 (мм) | Высота вил максимальная h3 + h13 (мм) | Габаритная высота мачты максимальная h4 (мм) | |
| SX | 1600 | — | 2196 | 1660 | 2450 | 
| DX | 2500 | — | 1850 | 2560 | 3350 | 
| 3000 | — | 2100 | 3060 | 3850 | |
| 3200 | — | 2200 | 3260 | 4050 | |
| 3600 | — | 2400 | 3660 | 4450 | |
| 4000 | — | 2600 | 4060 | 4850 | |
| TX (с функцией свободного подъема (FFL) | 3600 | 1200 | 1800 | 3660 | 4450 | 
| 4000 | 1330 | 1935 | 4060 | 4850 | |
| 4300 | 1430 | 2035 | 4360 | 5150 | |
| 4500 | 1500 | 2100 | 4560 | 5350 | 
| Высота подъема h3 (мм) | Высота свободного подъема h2 (мм) | Габаритная высота мачты минимальная h1 (мм) | Высота вил максимальная h3 + h13 (мм) | Габаритная высота мачты максимальная h4 (мм) | |
| SX | 1600 | — | 2196 | 1660 | 2450 | 
| DX | 2500 | — | 1850 | 2560 | 3350 | 
| 3000 | — | 2100 | 3060 | 3850 | |
| 3200 | — | 2200 | 3260 | 4050 | |
| 3600 | — | 2400 | 3660 | 4450 | |
| 4000 | — | 2600 | 4060 | 4850 | |
| TX (с функцией свободного подъема (FFL) | 3600 | 1200 | 1800 | 3660 | 4450 | 
| 4000 | 1330 | 1935 | 4060 | 4850 | |
| 4300 | 1430 | 2035 | 4360 | 5150 | |
| 4500 | 1500 | 2100 | 4560 | 5350 | 
 
                                 
                                 
                                