 
     
                             
                             
                             
                             
                            Самоходные штабелеры с функцией двойного подъема Noblelift PS12-16DL — это надежное решение для складов и производственных помещений, где требуется быстрая и безопасная обработка грузов. Модель сочетает высокую грузоподъемность (до 1600 кг) и способность поднимать паллеты на значительную высоту, что делает ее универсальной техникой для самых разных логистических задач.
Штабелер оснащен современными системами управления, прочной мачтой и электроприводом, что обеспечивает точность, эффективность и безопасность при работе. Благодаря компактным габаритам и усиленной конструкции он одинаково хорошо подходит как для интенсивной эксплуатации в логистических комплексах, так и для работы на складах с ограниченным пространством.
 
                                                
                        
                     
                             
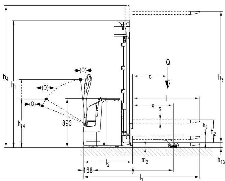
                            | Основные параметры | 1.2 | Модель | PS12DL | PS16DL | |
| 1.3 | Привод: электрический (тип: аккумулятор, сеть,…), дизельный, бензиновый, газовый | Электрический (аккумулятор) | Электрический (аккумулятор) | ||
| 1.4 | Положение оператора | Пеший | Пеший | ||
| 1.5 | Грузоподъемность | Q (кг) | 1200 | 1600 | |
| Грузоподъемность при подъеме груза на вилах | Q (кг) | 1200 | 1600 | ||
| Грузоподъемность при подъеме груза на опорных вилах | Q (кг) | 2000 | 2000 | ||
| 1.6 | Центр загрузки | c (мм) | 600 | 600 | |
| 1.8 | Расстояние от центра оси до вил | x (мм) | 695 * | 695 * | |
| 1.9 | Колесная база | y (мм) | 1374 * | 1417 * | |
| Массы | 2.1 | Масса | кг | 1070 | 1380 | 
| 2.2 | Нагрузка на переднюю/заднюю ось с грузом | кг | 870/220 | 1130/2250 | |
| 2.3 | Нагрузка на переднюю/заднюю ось без груза | кг | 730/340 | 945/435 | |
| Колеса, ходовая часть | 3.1 | Тип колес | Полиуретан (PU) | Полиуретан (PU) | |
| 3.2 | Размер передних (ведущих) колес | Ø230х70 | Ø230х70 | ||
| 3.3 | Размер задних колес | Ø80х70 | Ø80х70 | ||
| 3.4 | Дополнительные колеса | Ø150х54 | Ø150х54 | ||
| 3.5 | Количество колес спереди/сзади (х-ведущие) | 1х+1/4 | 1х+1/4 | ||
| 3.6 | Колея передних колес | b10 (мм) | 522 | 522 | |
| 3.7 | Колея задних колес | b11 (мм) | 390 | 390 | |
| Размеры | 4.2 | Габаритная высота (min) | h1 (мм) | 2308 | 2108 | 
| 4.3 | Свободный подъем | h2 (мм) | — | 1520 | |
| 4.4 | Высота подъема | h3 (мм) | 3530 | 4530 | |
| 4.5 | Габаритная высота (max) | h4 (мм) | 4080 | 5080 | |
| 4.6 | Начальный подъем | h5 (мм) | 120 | 120 | |
| 4.9 | Высота ручки (min/max) | h14 (мм) | 850/1385 | 850/1385 | |
| 4.15 | Высота вил в нижнем положении | h13 (мм) | 90 | 90 | |
| 4.19 | Общая длина | l1 (мм) | 1998 | 2042 | |
| 4.20 | Длина до фронта вил | l2 (мм) | 848 | 892 | |
| 4.21 | Общая ширина | b1 (мм) | 820 | 820 | |
| 4.22 | Размеры вил | s/e/l (мм) | 60/180/1150 | 60/180/1150 | |
| 4.25 | Ширина установки вил | b5 (мм) | 570 | 570 | |
| 4.32 | Дорожный просвет в центре базы | m2 (мм) | 28 | 28 | |
| 4.34 | Ширина прохода с паллетой 800×1200 | Ast (мм) | 2512 | 2555 | |
| 4.35 | Радиус разворота | Wa (мм) | 1667 * | 1711 * | |
| Характеристики | 5.1 | Скорость движения (с грузом/ без груза) | км/ч | 5,5/6,0 | 5,5/6,0 | 
| 5.2 | Скорость подъема (с грузом/ без груза) | мм/с | 90/140 | 130/200 | |
| 5.3 | Скорость движения вил вниз (с грузом/ без груза) | мм/с | 250/200 | 280/230 | |
| 5.8 | Преодолимый уклон max (с грузом/ без груза) | % | 6/12 | 6/12 | |
| 5.10 | Тормозная система | Электромагнитный тормоз | Электромагнитный тормоз | ||
| Параметры электрической системы | 6.1 | Мощность двигателя движения | кВт | 1,7 | 1,7 | 
| 6.2 | Мощность двигателя подъема | кВт | 1,5 | 3,2 | |
| 6.3 | Стандарт АКБ | 2VBS | 3VBS | ||
| 6.4 | Напряжение питания, номинальная емкость АКБ | В/ А∙ч | 24/ 180 | 24/ 270 | |
| 6.5 | Масса АКБ | кг | 175 | 230 | |
| 6.6 | Потребление энергии в соотв. с циклом VDI | кВт∙ч/ч | 1,00 | 0,96 | |
| Зарядное устройство | В/А | 24/25 | 24/35 | ||
| Другое | 8.1 | Тип управления ходом | AC | AC | |
| 8.4 | Уровень шума | дБ(А) | <70 | <70 | 
| Высота подъема h3 (мм) | Высота свободного подъема h2 (мм) | Габаритная высота мачты минимальная h1 (мм) | Высота вил максимальная h3 + h13 (мм) | Габаритная высота мачты максимальная h4 (мм) | |
| DX | 2830 | — | 1958 | 2920 | 3380 | 
| 3130 | — | 2108 | 3220 | 3680 | |
| 3530 | — | 2308 | 3620 | 4080 | |
| DX (с функцией свободного подъема (FFL) | 2830 | 1410 | 1958 | 2920 | 3380 | 
| 3130 | 1560 | 2108 | 3220 | 3680 | |
| 3530 | 1760 | 2308 | 3620 | 4080 | 
| Высота подъема h3 (мм) | Высота свободного подъема h2 (мм) | Габаритная высота мачты минимальная h1 (мм) | Высота вил максимальная h3 + h13 (мм) | Габаритная высота мачты максимальная h4 (мм) | |
| DX | 2830 | — | 1958 | 2920 | 3380 | 
| 3130 | — | 2108 | 3220 | 3680 | |
| 3530 | — | 2308 | 3620 | 4080 | |
| DX (с функцией свободного подъема (FFL) | 2830 | 1410 | 1958 | 2920 | 3380 | 
| 3130 | 1560 | 2108 | 3220 | 3680 | |
| 3530 | 1760 | 2308 | 3620 | 4080 | |
| TX | 4230 | — | 2008 | 4320 | 4780 | 
| 4530 | — | 2108 | 4620 | 5080 | |
| TX (с функцией свободного подъема (FFL) | 3330 | 1120 | 1708 | 3420 | 3880 | 
| 3930 | 1320 | 1908 | 4020 | 4480 | |
| 4230 | 1420 | 2008 | 4320 | 4780 | |
| 4530 | 1520 | 2108 | 4620 | 5080 | 
 
                                 
                                