Noblelift SPM – штабелеры с электроподъемом - Noblelift-Belarus.by
Корзина (0)
Добавить в сравнение
0
Выбрать конфигурацию
Модель:
SPM 1016
SPM 1025
SPM 1030
SPM 1516
SPM 1525
SPM 1530
SPM 1535
Мачта:
Доставка
Мы готовы помочь в организации доставки груза надежной транспортной компанией по всей Беларуси!
При оформлении доставки согласуйте с вашим менеджером:
Адрес и дату доставки;
Вид транспорта;
Стоимость;
Способы оплаты;
Где посмотреть
Склад: 223060, Минская область, Минский район, Новодворский с-с, район д.Большое Стиклево 30/2
Финальная цена
Формируется в зависимости от выбора комплектующих. Более подробную цену можно узнать оставив заявку на создание коммерческого предложения. Наши менеджеры оперативно обработают ваш запрос и свяжутся с вами для уточнения деталей

Noblelift SPM – штабелеры с электроподъемом

Штабелеры с электроподъемом Noblelift SPM — это надежное решение для подъема и перемещения паллетированных грузов на складах, в производственных и торговых помещениях. Данные модели относятся к полуэлектрическим штабелерам: движение выполняется вручную, а подъем груза осуществляется при помощи мощного электрического привода. Такая конструкция сочетает в себе простоту управления и энергоэффективность, обеспечивая оптимальное соотношение стоимости и производительности.

Модели SPM рассчитаны на подъем грузов весом до 1000–1500 кг на высоту до 3,5 метров. Это делает их универсальными помощниками для работы со стеллажными системами различной высоты. Благодаря прочной мачте, устойчивой раме и современным элементам управления, штабелеры Noblelift SPM гарантируют безопасность и удобство при эксплуатации.

Использование электрического привода для подъема снижает нагрузку на оператора, ускоряет процессы складской обработки и повышает эффективность работы даже в условиях ограниченного пространства.

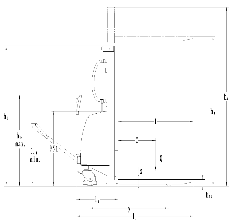
Основные технические параметры
Технические параметры базовой модели
Основные параметры  1.2  Модель  SPM 1016  SPM 1025  SPM 1030  SPM 1516  SPM 1525  SPM 1530  SPM 1535
 1.3  Привод: электрический (тип: аккумулятор, сеть,…), дизельный, бензиновый, газовый  Полуэлектрический  Полуэлектрический  Полуэлектрический  Полуэлектрический  Полуэлектрический  Полуэлектрический  Полуэлектрический
 1.4  Положение оператора  Пеший  Пеший  Пеший  Пеший  Пеший  Пеший  Пеший
 1.5  Грузоподъемность  Q (кг)  1000  1000  1000  1500  1500  1500  1500
 1.6  Центр загрузки  c (мм)  600  600  600  600  600  600  600
 1.8  Расстояние от центра оси до вил  x (мм)  795  785  785
 1.9  Колесная база  y (мм)  1210  1210  1210  1180  1180  1180  1180
Массы  2.1  Масса  кг  330  410  430  436  516  543  570
Колеса, ходовая часть  3.1  Тип колес  Нейлон / Полиуретан (PU)  Нейлон / Полиуретан (PU)  Нейлон / Полиуретан (PU)  Нейлон / Полиуретан (PU)  Нейлон / Полиуретан (PU)  Нейлон / Полиуретан (PU)  Нейлон / Полиуретан (PU)
 3.2  Размер передних (ведущих) колес  Ø180×50  Ø180×50  Ø180×50  Ø180×50  Ø180×50  Ø180×50  Ø180×50
 3.3  Размер задних колес  Ø74×70  Ø74×70  Ø74×70  Ø74×70  Ø74×70  Ø74×70  Ø74×70
 3.5  Количество колес спереди/сзади (х-ведущие)  2/4  2/4  2/4  2/4  2/4  2/4  2/4
 3.6  Колея передних колес  b10 (мм)  680  680  680  680  680  680  680
 3.7  Колея задних колес  b11 (мм)  400  400  400  390  390  390  390
Размеры  4.2  Габаритная высота (min)  h1 (мм)  1980  1830  2080  1980  1780  2030  2280
 4.4  Высота подъема  h3 (мм)  1600  2500  3000  1600  2500  3000  3500
 4.5  Габаритная высота (max)  h4 (мм)  1980  3070  3570  1980  3020  3520  4020
 4.9  Высота ручки (min/max)  h14 (мм)  790/1156  790/1156  790/1156  790/1156  790/1156  790/1156  790/1156
 4.15  Высота вил в нижнем положении  h13 (мм)  85  85  85  85  85  85  85
 4.19  Общая длина  l1 (мм)  1710  1720  1720  1725  1725  1725  1725
 4.20  Длина до фронта вил  l2 (мм)  670  670  670  626  630  630  630
 4.21  Общая ширина  b1 (мм)  777  777  777  777  777  777  777
 4.22  Размеры вил  s/e/l (мм)  60/180/1100  60/180/1100  60/180/1100  60/180/1100  60/180/1100  60/180/1100  60/180/1100
 4.34  Ширина прохода с паллетой 800×1200  Ast (мм)  2166  2166  2166  2212  2212  2212  2212
 4.35  Радиус разворота  Wa (мм)  1400  1400  1400  1400  1400  1400  1400
Характеристики  5.2  Скорость подъема (с грузом/ без груза)  мм/с  90/140  90/140  90/140  65/100  65/100  65/100  65/100
 5.3  Скорость движения вил вниз (с грузом/ без груза)  мм/с  120/100  120/100  120/100  85/70  85/70  85/70  85/70
Параметры электрической системы  6.2  Мощность двигателя подъема  кВт  1,5  1,5  1,5  1,5  1,5  1,5  1,5
 6.4  Напряжение питания, номинальная емкость АКБ  В/ А∙ч  12/ 150  12/ 150  12/ 150  12/ 150  12/ 150  12/ 150  12/ 150
 6.5  Масса АКБ  кг  45  45  45  45  45  45  45
*Данные согласно VDI 2198. Производитель оставляет право вносить изменения в конструкцию техники
Полезные файлы
pdf
Брошюра
pdf
Руководство SPM1015 (RU)
pdf
Каталог запчастей SPM15 (EN)
pdf
Каталог запчастей SPM10 (EN)
pdf
Остаточное грузоподъемности
Оптимальное сочетание цены и функционала
В отличие от полностью электрических штабелеров, серия SPM не требует значительных вложений в обслуживание сложной ходовой части. Электроподъем обеспечивает автоматизацию ключевого процесса — подъема и опускания вил, а ручное перемещение позволяет сохранить компактность и доступность.
Прочность и долговечность конструкции
Рама и мачта штабелеров Noblelift SPM изготовлены из усиленной стали, устойчивой к износу и механическим нагрузкам. Качественные полиуретановые колеса обеспечивают плавное перемещение по ровным промышленным полам, уменьшая вибрации и износ. Все ключевые узлы — от гидравлической системы до электрического привода — рассчитаны на длительную эксплуатацию и требуют минимального обслуживания, что делает штабелер выгодным вложением в долгосрочной перспективе.
Эргономичность и удобство работы
Управление штабелером интуитивно понятно даже для начинающего оператора. Удобный рычаг управления, встроенный индикатор заряда батареи и аварийная кнопка позволяют контролировать работу техники в реальном времени. Электроподъем устраняет необходимость прилагать физические усилия для подъема тяжелых грузов, что снижает усталость персонала и минимизирует риск ошибок при эксплуатации.
Высокая эффективность в складской логистике
Благодаря грузоподъемности до 1,5 тонн и высоте подъема до 3,5 метров, штабелеры SPM позволяют эффективно обрабатывать широкий спектр грузов — от стандартных европаллет до нестандартных упаковок. Компактные размеры и малый радиус разворота делают их незаменимыми в условиях ограниченного пространства, где применение погрузчика невозможно. Это особенно важно для магазинов, распределительных центров и производственных складов с узкими проходами.
Select the fields to be shown. Others will be hidden. Drag and drop to rearrange the order.
  • Image
  • Additional information
Click outside to hide the comparison bar
Compare