 
     
                             
                             
                             
                             
                             
                            Самоходные штабелеры без платформы для оператора Noblelift ECL15B / ECL15N – это современное и надежное оборудование для подъема и перемещения грузов на паллетах внутри складских и производственных помещений. Благодаря грузоподъемности до 1500 кг и высоте подъема до 3,6 м, модель идеально подходит для работы на складах, в логистических центрах, торговых и производственных предприятиях.
Оборудование оснащено эргономичной рукоятью управления, электромагнитным тормозом, системой противоотката и аварийной кнопкой остановки, что обеспечивает высокий уровень безопасности и удобство эксплуатации.
Самоходный штабелер ECL15B / ECL15N разработан для работы на ровных и твердых поверхностях при температуре от +5°C до +40°C, имеет компактные габариты и малый радиус разворота, что делает его эффективным решением для работы в узких проходах.
 
                             
                            | Основные параметры | 1.2 | Модель | ECL15B / N (1600) | ECL15B / N (3600) | |
| 1.3 | Привод: электрический (тип: аккумулятор, сеть,…), дизельный, бензиновый, газовый | Электрический (аккумулятор) | Электрический (аккумулятор) | ||
| 1.4 | Положение оператора | Пеший | Пеший | ||
| 1.5 | Грузоподъемность | Q (кг) | 1500 | 1500 | |
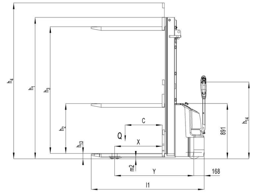
| 1.6 | Центр загрузки | c (мм) | 600 | 600 | |
| 1.8 | Расстояние от центра оси до вил | x (мм) | 770 | 770 | |
| 1.9 | Колесная база | y (мм) | 1258 | 1283 | |
| Массы | 2.1 | Масса | кг | 641 / (589) * | 782 / (730) * | 
| 2.2 | Нагрузка на переднюю/заднюю ось с грузом | кг | 677/1464 / (661/1428) * | 722/1560 / (706/1524) * | |
| 2.3 | Нагрузка на переднюю/заднюю ось без груза | кг | 446/195 / (410/179) * | 544/238 / (507/223) * | |
| Колеса, ходовая часть | 3.1 | Тип колес | Полиуретан (PU) | Полиуретан (PU) | |
| 3.2 | Размер передних (ведущих) колес | Ø210х70 | Ø210х70 | ||
| 3.3 | Размер задних колес | Ø80х70 | Ø80х70 | ||
| 3.4 | Дополнительные колеса | Ø100х50 | Ø100х50 | ||
| 3.5 | Количество колес спереди/сзади (х-ведущие) | 1х+1/4 | 1х+1/4 | ||
| 3.6 | Колея передних колес | b10 (мм) | 557 | 557 | |
| 3.7 | Колея задних колес | b11 (мм) | 410/525 | 410/525 | |
| Размеры | 4.2 | Габаритная высота (min) | h1 (мм) | 1978 | 2280 | 
| 4.3 | Свободный подъем | h2 (мм) | 1510 | 78 | |
| 4.4 | Высота подъема | h3 (мм) | 1515 | 3575 | |
| 4.5 | Габаритная высота (max) | h4 (мм) | 1985 | 4005 | |
| 4.9 | Высота ручки (min/max) | h14 (мм) | 710/1245 | 710/1245 | |
| 4.15 | Высота вил в нижнем положении | h13 (мм) | 85 | 85 | |
| 4.19 | Общая длина | l1 (мм) | 1806 | 1830 | |
| 4.20 | Длина до фронта вил | l2 (мм) | 656 | 681 | |
| 4.21 | Общая ширина | b1 (мм) | 820 | 820 | |
| 4.22 | Размеры вил | s/e/l (мм) | 60/180/1150 | 60/180/1150 | |
| 4.25 | Ширина установки вил | b5 (мм) | 570/685 | 570/685 | |
| 4.32 | Дорожный просвет в центре базы | m2 (мм) | 25 | 25 | |
| 4.33 | Ширина прохода с паллетой 1000×1200 | Ast (мм) | 2293 | 2317 | |
| 4.34 | Ширина прохода с паллетой 800×1200 | Ast (мм) | 2237 | 2261 | |
| 4.35 | Радиус разворота | Wa (мм) | 1450 | 1474 | |
| Характеристики | 5.1 | Скорость движения (с грузом/ без груза) | км/ч | 4,4/4,7 | 4,4/4,7 | 
| 5.2 | Скорость подъема (с грузом/ без груза) | мм/с | 105/170 | 105/170 | |
| 5.3 | Скорость движения вил вниз (с грузом/ без груза) | мм/с | 126/126 | 126/126 | |
| 5.8 | Преодолимый уклон max (с грузом/ без груза) | % | 5/10 | 5/10 | |
| 5.10 | Тормозная система | Электромагнитный тормоз | Электромагнитный тормоз | ||
| Параметры электрической системы | 6.1 | Мощность двигателя движения | кВт | 0,75 | 0,75 | 
| 6.2 | Мощность двигателя подъема | кВт | 2,2 | 2,2 | |
| 6.4 | Напряжение питания, номинальная емкость АКБ | В/ А∙ч | 4х12/ 60 / (1×48/ 50) * | 4х12/ 60 / (1×48/ 50) * | |
| 6.5 | Масса АКБ | кг | 4х20 / (1×28) * | 4х20 / (1×28) * | |
| 6.6 | Потребление энергии в соотв. с циклом VDI | кВт∙ч/ч | 0,5 / (0,74) * | 0,5 / (0,74) * | |
| Другое | 8.1 | Тип управления ходом | DC- speed control | DC- speed control | |
| 8.4 | Уровень шума | дБ(А) | <70 | <70 | 
| Высота подъема h3 (мм) | Высота свободного подъема h2 (мм) | Габаритная высота мачты минимальная h1 (мм) | Высота вил максимальная h3 + h13 (мм) | Габаритная высота мачты максимальная h4 (мм) | |
| SX | 1515 | 1510 | 1978 | 1600 | 1985 | 
| 1915 | 1910 | 2378 | 2000 | 2385 | |
| DX | 2815 | 78 | 1930 | 2900 | 3305 | 
| 3115 | 78 | 2080 | 3200 | 3605 | |
| 3515 | 78 | 2280 | 3600 | 4005 | 
| Высота подъема h3 (мм) | Высота свободного подъема h2 (мм) | Габаритная высота мачты минимальная h1 (мм) | Высота вил максимальная h3 + h13 (мм) | Габаритная высота мачты максимальная h4 (мм) | |
| SX | 1515 | 1510 | 1978 | 1600 | 1985 | 
| 1915 | 1910 | 2378 | 2000 | 2385 | |
| DX | 2815 | 78 | 1930 | 2900 | 3305 | 
| 3115 | 78 | 2080 | 3200 | 3605 | |
| 3515 | 78 | 2280 | 3600 | 4005 | 
 
                                 
                                