 
     
                             
                             
                             
                             
                             
                            Ручные гидравлические штабелеры Noblelift SFH — это надежное и удобное оборудование для подъема и перемещения паллетированных грузов по ровным и твердым поверхностям. В линейку входят модели с грузоподъемностью 1000 и 1500 кг и высотой подъема до 2500 мм, что позволяет подобрать оптимальное решение для разных складских и производственных задач.
Штабелеры SFH отличаются прочной стальной конструкцией, эргономичным управлением и простотой обслуживания. Подъем грузов осуществляется с помощью гидравлической системы — через прокачку ножной педали или рукоятки, а опускание выполняется плавно с помощью рычага. Компактные габариты и радиус разворота всего 1380 мм позволяют использовать штабелер даже в узких проходах и на небольших площадках, где применение габаритной техники невозможно.
Такие штабелеры широко применяются на складах, в мастерских, магазинах, а также на производственных предприятиях, где требуется безопасный и экономичный способ работы с паллетами и другими грузами.
 
                             
                            | Основные параметры | 1.2 | Модель | SFH1016 | SFH1516 | SFH1025 | |
| 1.5 | Грузоподъемность | Q (кг) | 1000 | 1500 | 1000 | |
| 1.6 | Центр загрузки | c (мм) | 600 | 600 | 600 | |
| Массы | 2.1 | Масса | кг | 220 | 260 | 270 | 
| Колеса, ходовая часть | 3.2 | Размер передних (ведущих) колес | Ø180х50 | Ø180х50 | Ø180х50 | |
| 3.3 | Размер задних колес | Ø74х70 | Ø74х70 | Ø74х70 | ||
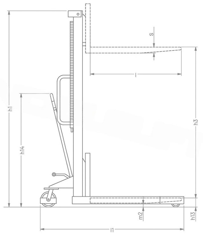
| Размеры | 4.2 | Габаритная высота (min) | h1 (мм) | 1980 | 1980 | 1830 | 
| 4.4 | Высота подъема | h3 (мм) | 1600 | 1600 | 2500 | |
| 4.15 | Высота вил в нижнем положении | h13 (мм) | 85 | 85 | 85 | |
| Размеры вил | exs(мм) | 160×60 | 160×60 | 160×60 | ||
| Длина вил | l(мм) | 1150 | 1150 | 1150 | ||
| 4.25 | Ширина установки вил | b5 (мм) | 550 | 550 | 550 | |
| 4.35 | Радиус разворота | Wa (мм) | 1380 | 1380 | 1380 | 
 
                                 
                                 
                                