 
     
                             
                             
                             
                             
                             
                            Электрический ричтрак NOBLELIFT RT16Li — современное складское решение с литий-ионным аккумулятором, разработанное для высокой эффективности и безопасности работы. Компактная конструкция и минимальный радиус разворота позволяют легко маневрировать в узких проходах, а грузоподъемность 1,6 тонны и высота подъема до 9,5 метров обеспечивают работу с многоуровневыми стеллажами. Литий-ионная батарея нового поколения заряжается быстро, не требует обслуживания и гарантирует долгую автономную работу. Эргономичное рабочее место, продвинутая система безопасности и энергоэффективность делают RT16Li идеальным выбором для современных складов и логистических центров.
 
                                                
                        
                     
                             
                            | Основные параметры | 1.2 | Модель | RT16Li | |
| 1.3 | Привод: электрический (тип: аккумулятор, сеть,…), дизельный, бензиновый, газовый | Электрический (аккумулятор) | ||
| 1.4 | Положение оператора | Сидя | ||
| 1.5 | Грузоподъемность | Q (кг) | 1600 | |
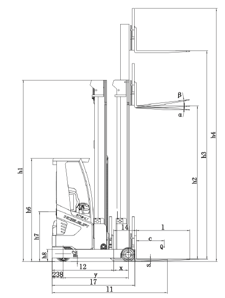
| 1.6 | Центр загрузки | c (мм) | 600 | |
| 1.8 | Расстояние от центра оси до вил | x (мм) | 310 | |
| 1.9 | Колесная база | y (мм) | 1400 | |
| Массы | 2.1 | Масса | кг | 3700 | 
| Колеса, ходовая часть | 3.1 | Тип колес | Полиуретан (PU) | |
| 3.2 | Размер передних (ведущих) колес | Ø343×140 | ||
| 3.3 | Размер задних колес | Ø280×110 | ||
| 3.5 | Количество колес спереди/сзади (х-ведущие) | 1x/2 | ||
| 3.6 | Колея передних колес | b10 (мм) | 1160 | |
| 3.7 | Колея задних колес | b11 (мм) | 1160 | |
| Размеры | 4.1 | Наклон мачты/каретки вил вперед/назад | α/β (º) | 4/-2 | 
| 4.2 | Габаритная высота (min) | h1 (мм) | 3900 | |
| 4.3 | Свободный подъем | h2 (мм) | 3290 | |
| 4.4 | Высота подъема | h3 (мм) | 9500 | |
| 4.5 | Габаритная высота (max) | h4 (мм) | 10410 | |
| 4.7 | Высота по защитному ограждению (кабине) | h6 (мм) | 2200 | |
| 4.19 | Общая длина | l1 (мм) | 2410 | |
| 4.20 | Длина до фронта вил | l2 (мм) | 1260 | |
| 4.21 | Общая ширина | b1 (мм) | 1270 | |
| 4.22 | Размеры вил | s/e/l (мм) | 40/120/1150 | |
| 4.25 | Ширина установки вил | b5 (мм) | 240/760 | |
| 4.28 | Ход мачты (выдвижение) | l4 (мм) | 485 | |
| 4.31 | Дорожный просвет под мачтой | m1 (мм) | 75 | |
| 4.33 | Ширина прохода с паллетой 1000×1200 | Ast (мм) | 2770 | |
| 4.34 | Ширина прохода с паллетой 800×1200 | Ast (мм) | 2830 | |
| 4.35 | Радиус разворота | Wa (мм) | 1650 | |
| 4.37 | Длина по опорным консолям | l7 (мм) | 1780 | |
| Характеристики | 5.1 | Скорость движения (с грузом/ без груза) | км/ч | 10,5/10,5 | 
| 5.2 | Скорость подъема (с грузом/ без груза) | мм/с | 0,38/0,5 | |
| 5.3 | Скорость движения вил вниз (с грузом/ без груза) | мм/с | 0,48/0,4 | |
| 5.4 | Скорость выдвижения мачты (с грузом/ без груза) | м/с | 0,15/0,15 | |
| 5.8 | Преодолимый уклон max (с грузом/ без груза) | % | 10/15 | |
| 5.10 | Тормозная система | Гидравлический тормоз | ||
| Параметры электрической системы | 6.1 | Мощность двигателя движения | кВт | 6,4/ 7,0 | 
| 6.2 | Мощность двигателя подъема | кВт | 12,5 | |
| 6.3 | Стандарт АКБ | No (Li-Ion) | ||
| 6.4 | Напряжение питания, номинальная емкость АКБ | В/ А∙ч | 51,2/ 350 | |
| 6.5 | Масса АКБ | кг | 250 | |
| Другое | 8.1 | Тип управления ходом | AC | |
| 8.2 | Рабочее давление гидросистемы для навесного оборудования | МПа | 150 | |
| 8.3 | Расход гидравлического масла навесным оборудованием | л/мин | 40 | |
| 8.4 | Уровень шума | дБ(А) | <70 | 
| Высота подъема h3 (мм) | Высота свободного подъема h2 (мм) | Габаритная высота мачты минимальная h1 (мм) | Габаритная высота мачты максимальная h4 (мм) | |
| DX | 3000 | 140 | 2100 | 3910 | 
| 3500 | 140 | 2350 | 4410 | |
| 5500 | 140 | 2600 | 4910 | |
| 6000 | 140 | 2850 | 5410 | |
| TX (с функцией свободного подъема (FFL) | 4500 | 1563 | 2235 | 5410 | 
| 5000 | 1730 | 2400 | 5910 | |
| 5500 | 1897 | 2568 | 6410 | |
| 6000 | 2063 | 2735 | 6910 | |
| 6500 | 2230 | 2900 | 7410 | |
| 7000 | 2397 | 3068 | 7910 | |
| 7500 | 2563 | 3234 | 8410 | |
| 8000 | 2730 | 3400 | 8910 | |
| 8500 | 2897 | 3567 | 9410 | |
| 9000 | 3063 | 3734 | 9910 | |
| 9500 | 3230 | 3900 | 10410 | 
 
                                 
                                 
                                 
                                