 
     
                             
                             
                             
                             
                             
                            Электрические ричтраки NOBLELIFT RT16-20B и RT 16-20Pro — это мощные, манёвренные и надёжные машины для работы на складе и в производственных зонах. Модели с грузоподъёмностью 1600 и 2000 кг оснащены прочным шасси, оптимальной развесовкой и системой точного управления, что обеспечивает отличную устойчивость и безопасность при работе на высоте. Компактный радиус разворота позволяет эффективно работать в узких проходах, а эргономичное рабочее место с амортизирующим сиденьем и регулируемым рулевым управлением гарантирует комфорт при длительных сменах. Энергоэффективные двигатели переменного тока, рекуперативное торможение и LED-освещение снижают эксплуатационные расходы и увеличивают срок службы оборудования.
 
                                                
                        
                     
                             
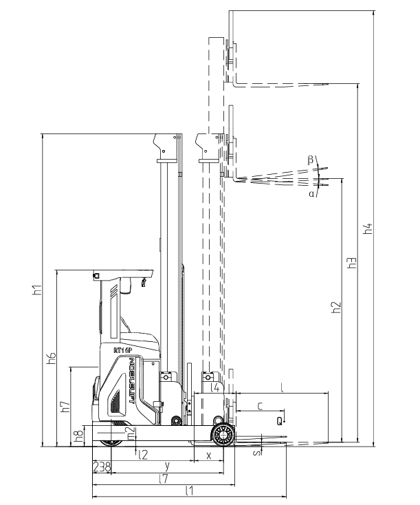
                            | Основные параметры | 1.2 | Модель | RT16B | RT16PRO | RT20B | RT20PRO | RT20PRO (20 кВт) | |
| 1.3 | Привод: электрический (тип: аккумулятор, сеть,…), дизельный, бензиновый, газовый | Электрический (аккумулятор) | Электрический (аккумулятор) | Электрический (аккумулятор) | Электрический (аккумулятор) | Электрический (аккумулятор) | ||
| 1.4 | Положение оператора | Сидя | Сидя | Сидя | Сидя | Сидя | ||
| 1.5 | Грузоподъемность | Q (кг) | 1600 | 1600 | 2000 | 2000 | 2000 | |
| 1.6 | Центр загрузки | c (мм) | 600 | 600 | 600 | 600 | 600 | |
| 1.8 | Расстояние от центра оси до вил | x (мм) | 365/176 | 365/176 | 395/200 | 395/200 | 395/200 | |
| 1.9 | Колесная база | y (мм) | 1400 | 1400 | 1500 | 1500 | 1500 | |
| Массы | 2.1 | Масса | кг | 3990 | 3960 | 4250 | 4220 | 4220 | 
| 2.3 | Нагрузка на переднюю/заднюю ось без груза | кг | 2450/1540 | 2420/1540 | 2580/1670 | 2560/1660 | 2560/1660 | |
| 2.4 | Нагрузка на переднюю/заднюю ось с грузом, мачта выдвинута | кг | 890/4700 | 830/4760 | 766/5484 | 476/5474 | 476/5474 | |
| 2.5 | Нагрузка на переднюю/заднюю ось с грузом, мачта втянута | кг | 2180/3410 | 2100/3460 | 2290/3960 | 2270/3950 | 2270/3950 | |
| Колеса, ходовая часть | 3.1 | Тип колес | Полиуретан (PU) | Полиуретан (PU) | Полиуретан (PU) | Полиуретан (PU) | Полиуретан (PU) | |
| 3.2 | Размер передних (ведущих) колес | Ø343×140 | Ø343×140 | Ø343×140 | Ø343×140 | Ø343×140 | ||
| 3.3 | Размер задних колес | Ø285×110 | Ø285×110 | Ø330×110 | Ø330×110 | Ø330×110 | ||
| 3.5 | Количество колес спереди/сзади (х-ведущие) | 1x/2 | 1x/2 | 1x/2 | 1x/2 | 1x/2 | ||
| 3.7 | Колея задних колес | b11 (мм) | 1160 | 1160 | 1160 | 1160 | 1160 | |
| Размеры | 4.1 | Наклон мачты/каретки вил вперед/назад | α/β (º) | 4/-2 | 4/-2 | 4/-2 | 4/-2 | 4/-2 | 
| 4.2 | Габаритная высота (min) | h1 (мм) | 3900 | 3900 | 3900 | 3900 | 3900 | |
| 4.3 | Свободный подъем | h2 (мм) | 3290 | 3290 | 3290 | 3290 | 3290 | |
| 4.4 | Высота подъема | h3 (мм) | 9500 | 9500 | 9500 | 9500 | 9500 | |
| 4.5 | Габаритная высота (max) | h4 (мм) | 10410 | 10410 | 10410 | 10410 | 10410 | |
| 4.7 | Высота по защитному ограждению (кабине) | h6 (мм) | 2200 | 2200 | 2200 | 2200 | 2200 | |
| 4.8 | Высота сиденья | h7 (мм) | 960 | 960 | 960 | 960 | 960 | |
| 4.10 | Высота опорных консолей | h8 (мм) | 270 | 270 | 270 | 270 | 270 | |
| 4.15 | Высота вил в нижнем положении | h13 (мм) | 40 | 40 | 40 | 40 | 40 | |
| 4.19 | Общая длина | l1 (мм) | 2412 | 2412 | 2488 | 2488 | 2488 | |
| 4.20 | Длина до фронта вил | l2 (мм) | 1262 | 1262 | 1338 | 1338 | 1338 | |
| 4.21 | Общая ширина | b1 (мм) | 1270 | 1270 | 1270 | 1270 | 1270 | |
| 4.22 | Размеры вил | s/e/l (мм) | 35/100/1150 | 35/100/1150 | 40/120/1150 | 40/120/1150 | 40/120/1150 | |
| 4.25 | Ширина установки вил | b5 (мм) | 220/750 | 220/750 | 240/750 | 240/750 | 240/750 | |
| 4.26 | Расстояние между опорными консолями | b4 (мм) | 900 | 900 | 900 | 900 | 900 | |
| 4.28 | Ход мачты (выдвижение) | l4 (мм) | 525 | 525 | 595 | 595 | 595 | |
| 4.31 | Дорожный просвет под мачтой | m1 (мм) | 90 | 90 | 90 | 90 | 90 | |
| 4.32 | Дорожный просвет в центре базы | m2 (мм) | 75 | 75 | 75 | 75 | 75 | |
| 4.33 | Ширина прохода с паллетой 1000×1200 | Ast (мм) | 2720 | 2720 | 2840 | 2840 | 2840 | |
| 4.34 | Ширина прохода с паллетой 800×1200 | Ast (мм) | 2780 | 2780 | 2900 | 2900 | 2900 | |
| 4.35 | Радиус разворота | Wa (мм) | 1650 | 1650 | 1750 | 1750 | 1750 | |
| 4.37 | Длина по опорным консолям | l7 (мм) | 1780 | 1780 | 1900 | 1900 | 1900 | |
| Характеристики | 5.1 | Скорость движения (с грузом/ без груза) | км/ч | 10,5/ 10,5 | 10,5/ 10,5 | 10,5/ 10,5 | 10,5/ 10,5 | 10,5/ 10,5 14/ 14 (с двигателем 10 кВт) | 
| 5.2 | Скорость подъема (с грузом/ без груза) | мм/с | 0,35/ 0,5 | 0,35/ 0,5 | 0,35/ 0,5 | 0,35/ 0,5 | 0,45/ 0,7 | |
| 5.3 | Скорость движения вил вниз (с грузом/ без груза) | мм/с | 0,45/ 0,45 | 0,45/ 0,45 | 0,45/ 0,45 | 0,45/ 0,45 | 0,55/ 0,55 | |
| 5.4 | Скорость выдвижения мачты (с грузом/ без груза) | м/с | 0,1/ 0,1 | 0,1/ 0,1 | 0,1/ 0,1 | 0,1/ 0,1 | 0,15/ 0,15 | |
| 5.8 | Преодолимый уклон max (с грузом/ без груза) | % | 10/ 15 | 10/ 15 | 10/ 15 | 10/ 15 | 10/ 15 | |
| 5.10 | Тормозная система | Электромагнитный тормоз на ведущем колесе, гидравлические тормоза оп. колес | Электромагнитный тормоз на ведущем колесе, гидравлические тормоза оп. колес | Электромагнитный тормоз на ведущем колесе, гидравлические тормоза оп. колес | Электромагнитный тормоз на ведущем колесе, гидравлические тормоза оп. колес | Электромагнитный тормоз на ведущем колесе, гидравлические тормоза оп. колес | ||
| Параметры электрической системы | 6.1 | Мощность двигателя движения | кВт | 6,4/7,0 | 6,4 / 7,0 | 6,4 / 7,0 | 6,4 / 7,0 | 7,0/ 10,0 (опция) | 
| 6.2 | Мощность двигателя подъема | кВт | 8,2 | 12,5 | 12,5 | 12,5 | 20 | |
| 6.3 | Стандарт АКБ | A, 3PzS | A, 3PzS | A, 4PzS | A, 4PzS | A, 4PzS | ||
| 6.4 | Напряжение питания, номинальная емкость АКБ | В/ А∙ч | 48/ 420 (560) | 48/ 420 (560) | 48/ 560 | 48/ 560 | 48/ 560 | |
| 6.5 | Масса АКБ | кг | 750 | 750 | 950 | 950 | 950 | |
| Другое | 8.1 | Тип управления ходом | AC | AC | AC | AC | AC | |
| 8.2 | Рабочее давление гидросистемы для навесного оборудования | МПа | 150 | 150 | 150 | 150 | 150 | |
| 8.3 | Расход гидравлического масла навесным оборудованием | л/мин | 40 | 40 | 40 | 40 | 40 | |
| 8.4 | Уровень шума | дБ(А) | 68 | 68 | 68 | 68 | 68 | 
| Высота подъема h3 (мм) | Высота свободного подъема h2 (мм) | Габаритная высота мачты минимальная h1 (мм) | Остаточная грузоподъемность (кг) | |
| TX (с функцией свободного подъема (FFL) | 4500 | 1563 | 2235 | 1600 | 
| 5000 | 1730 | 2400 | 1600 | |
| 5500 | 1897 | 2568 | 1600 | |
| 6000 | 2063 | 2735 | 1600 | |
| 6500 | 2230 | 2900 | 1600 | |
| 7000 | 2397 | 3068 | 1400 | |
| 7500 | 2563 | 3234 | 1200 | |
| 8000 | 2730 | 3400 | 1000 | |
| 8500 | 2897 | 3567 | 900 | |
| 9000 | 3063 | 3734 | 800 | |
| 9500 | 3230 | 3900 | 600 | |
| 10500 | 3563 | 4234 | 500 | 
| Высота подъема h3 (мм) | Высота свободного подъема h2 (мм) | Габаритная высота мачты минимальная h1 (мм) | Остаточная грузоподъемность (кг) | |
| TX (с функцией свободного подъема (FFL) | 4500 | 1563 | 2235 | 1600 | 
| 5000 | 1730 | 2400 | 1600 | |
| 5500 | 1897 | 2568 | 1600 | |
| 6000 | 2063 | 2735 | 1600 | |
| 6500 | 2230 | 2900 | 1600 | |
| 7000 | 2397 | 3068 | 1400 | |
| 7500 | 2563 | 3234 | 1200 | |
| 8000 | 2730 | 3400 | 1000 | |
| 8500 | 2897 | 3567 | 900 | |
| 9000 | 3063 | 3734 | 800 | |
| 9500 | 3230 | 3900 | 600 | |
| 10500 | 3563 | 4234 | 500 | 
| Высота подъема h3 (мм) | Высота свободного подъема h2 (мм) | Габаритная высота мачты минимальная h1 (мм) | Остаточная грузоподъемность (кг) | |
| TX (с функцией свободного подъема (FFL) | 4500 | 1563 | 2235 | 2000 | 
| 5000 | 1730 | 2400 | 2000 | |
| 5500 | 1897 | 2568 | 2000 | |
| 6000 | 2063 | 2735 | 2000 | |
| 6500 | 2230 | 2900 | 1900 | |
| 7000 | 2397 | 3068 | 1800 | |
| 7500 | 2563 | 3234 | 1600 | |
| 8000 | 2730 | 3400 | 1400 | |
| 8500 | 2897 | 3567 | 1200 | |
| 9000 | 3063 | 3734 | 1000 | |
| 9500 | 3230 | 3900 | 800 | |
| 10500 | 3563 | 4234 | 700 | 
| Высота подъема h3 (мм) | Высота свободного подъема h2 (мм) | Габаритная высота мачты минимальная h1 (мм) | Остаточная грузоподъемность (кг) | |
| TX (с функцией свободного подъема (FFL) | 4500 | 1563 | 2235 | 2000 | 
| 5000 | 1730 | 2400 | 2000 | |
| 5500 | 1897 | 2568 | 2000 | |
| 6000 | 2063 | 2735 | 2000 | |
| 6500 | 2230 | 2900 | 1900 | |
| 7000 | 2397 | 3068 | 1800 | |
| 7500 | 2563 | 3234 | 1600 | |
| 8000 | 2730 | 3400 | 1400 | |
| 8500 | 2897 | 3567 | 1200 | |
| 9000 | 3063 | 3734 | 1000 | |
| 9500 | 3230 | 3900 | 800 | |
| 10500 | 3563 | 4234 | 700 | 
| Высота подъема h3 (мм) | Высота свободного подъема h2 (мм) | Габаритная высота мачты минимальная h1 (мм) | Остаточная грузоподъемность (кг) | |
| TX (с функцией свободного подъема (FFL) | 4500 | 1563 | 2235 | 2000 | 
| 5000 | 1730 | 2400 | 2000 | |
| 5500 | 1897 | 2568 | 2000 | |
| 6000 | 2063 | 2735 | 2000 | |
| 6500 | 2230 | 2900 | 1900 | |
| 7000 | 2397 | 3068 | 1800 | |
| 7500 | 2563 | 3234 | 1600 | |
| 8000 | 2730 | 3400 | 1400 | |
| 8500 | 2897 | 3567 | 1200 | |
| 9000 | 3063 | 3734 | 1000 | |
| 9500 | 3230 | 3900 | 800 | |
| 10500 | 3563 | 4234 | 700 | 
 
                                 
                                 
                                