 
     
                             
                             
                             
                             
                             
                            Ричтрак Noblelift RT15DP / RT15-20SP — инновационные стоячие ричтраки с ножничным механизмом для работы на высоте до 10.5 метров. Грузоподъемность 1.5-2 тонны, компактная ширина 1080 мм и радиус поворота от 1825 мм позволяют работать в проходах от 2945 мм (паллета 1000×1200). Немецкие компоненты (гидравлика Shimadzu), регенеративное торможение и система автовыравнивания вил обеспечивают точность и безопасность. Идеально для высокостеллажных складов фармацевтики, логистики и e-commerce.
 
                                                
                        
                     
                             
                            | Основные параметры | 1.2 | Модель | RT15DP | RT15SP | RT20SP | |
| 1.3 | Привод: электрический (тип: аккумулятор, сеть,…), дизельный, бензиновый, газовый | Электрический (аккумулятор) | Электрический (аккумулятор) | Электрический (аккумулятор) | ||
| 1.4 | Положение оператора | Стоя | Стоя | Стоя | ||
| 1.5 | Грузоподъемность | Q (кг) | 1500 | 1500 | 2000 | |
| 1.6 | Центр загрузки | c (мм) | 600 | 600 | 600 | |
| 1.8 | Расстояние от центра оси до вил | x (мм) | См. доп. табл. 1* | См. доп. табл. 1* | См. доп. табл. 1* | |
| 1.9 | Колесная база | y (мм) | См. доп. табл. 1* | См. доп. табл. 1* | См. доп. табл. 1* | |
| Массы | 2.1 | Масса | кг | См. доп. табл. 2* | См. доп. табл. 2* | См. доп. табл. 2* | 
| Колеса, ходовая часть | 3.1 | Тип колес | Полиуретан (PU) | Полиуретан (PU) | Полиуретан (PU) | |
| 3.2 | Размер передних (ведущих) колес | Ø343×140 | Ø343×140 | Ø343×140 | ||
| 3.3 | Размер задних колес | Ø127×74 | Ø127×74 | Ø127×74 | ||
| 3.4 | Дополнительные колеса | Ø205×102 | Ø205×102 | Ø205×102 | ||
| 3.5 | Количество колес спереди/сзади (х-ведущие) | 1x,4/1 | 1x,4/1 | 1x,4/1 | ||
| 3.7 | Колея задних колес | b11 (мм) | 1170 | 1170 | 1170 | |
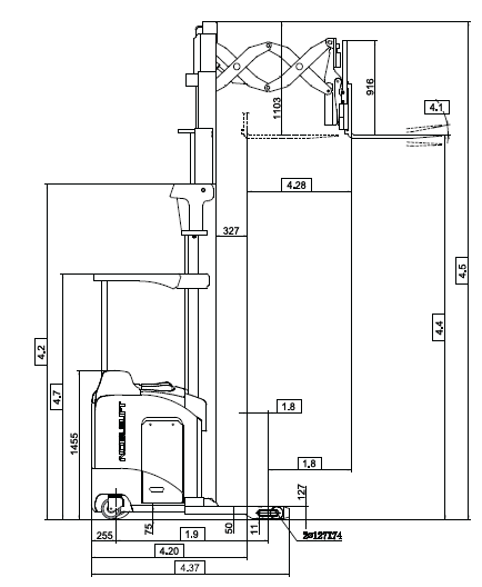
| Размеры | 4.1 | Наклон мачты/каретки вил вперед/назад | α/β (º) | 3/-4 | 3/-4 | 3/-4 | 
| 4.2 | Габаритная высота (min) | h1 (мм) | См. доп. табл. 3* | См. доп. табл. 3* | См. доп. табл. 3* | |
| 4.3 | Свободный подъем | h2 (мм) | См. доп. табл. 3* | См. доп. табл. 3* | См. доп. табл. 3* | |
| 4.4 | Высота подъема | h3 (мм) | См. доп. табл. 3* | См. доп. табл. 3* | См. доп. табл. 3* | |
| 4.5 | Габаритная высота (max) | h4 (мм) | См. доп. табл. 3* | См. доп. табл. 3* | См. доп. табл. 3* | |
| 4.7 | Высота по защитному ограждению (кабине) | h6 (мм) | См. доп. табл. 3* | См. доп. табл. 3* | См. доп. табл. 3* | |
| 4.20 | Длина до фронта вил | l2 (мм) | См. доп. табл. 1* | См. доп. табл. 1* | См. доп. табл. 1* | |
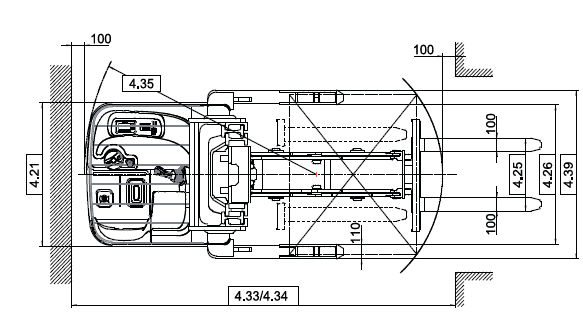
| 4.21 | Общая ширина | b1 (мм) | 1100 | 1100 | 1100 | |
| 4.22 | Размеры вил | s/e/l (мм) | 35/100/1070 | 40/100/1070 | 40/100/1070 | |
| 4.25 | Ширина установки вил | b5 (мм) | 220/760 | 220/760 | 220/760 | |
| 4.28 | Ход мачты (выдвижение) | l4 (мм) | 1060 | 570 | 570 | |
| 4.31 | Дорожный просвет под мачтой | m1 (мм) | 50 | 50 | 50 | |
| 4.33 | Ширина прохода с паллетой 1000×1200 | Ast (мм) | См. доп. табл. 1* | См. доп. табл. 1* | См. доп. табл. 1* | |
| 4.34 | Ширина прохода с паллетой 800×1200 | Ast (мм) | См. доп. табл. 1* | См. доп. табл. 1* | См. доп. табл. 1* | |
| 4.35 | Радиус разворота | Wa (мм) | См. доп. табл. 1* | См. доп. табл. 1* | См. доп. табл. 1* | |
| 4.37 | Длина по опорным консолям | l7 (мм) | См. доп. табл. 1* | См. доп. табл. 1* | См. доп. табл. 1* | |
| Характеристики | 5.1 | Скорость движения (с грузом/ без груза) | км/ч | 9/9,5 | 9/9,5 | 9/9,5 | 
| 5.2 | Скорость подъема (с грузом/ без груза) | мм/с | 0,35/0,45 | 0,35/0,45 | 0,35/0,45 | |
| 5.3 | Скорость движения вил вниз (с грузом/ без груза) | мм/с | 0,45/0,45 | 0,45/0,45 | 0,35/0,40 | |
| 5.4 | Скорость выдвижения мачты (с грузом/ без груза) | м/с | 0,13/0,13 | 0,13/0,13 | 0,13/0,13 | |
| 5.8 | Преодолимый уклон max (с грузом/ без груза) | % | 5 | 5 | 5 | |
| 5.10 | Тормозная система | Электрическая | Электрическая | Электрическая | ||
| Параметры электрической системы | 6.1 | Мощность двигателя движения | кВт | 5,5 | 5,5 | 5,5 | 
| 6.2 | Мощность двигателя подъема | кВт | 11 | 11 | 11 | |
| 6.4 | Напряжение питания, номинальная емкость АКБ | В/ А∙ч | См. доп. табл. 1* | См. доп. табл. 1* | См. доп. табл. 1* | |
| 6.5 | Масса АКБ | кг | См. доп. табл. 1* | См. доп. табл. 1* | См. доп. табл. 1* | |
| Размеры АКБ, ДxШxВ | мм | См. доп. табл. 1* | См. доп. табл. 1* | См. доп. табл. 1* | ||
| Другое | 8.1 | Тип управления ходом | Трехфазн. AC | Трехфазн. AC | Трехфазн. AC | |
| 8.2 | Рабочее давление гидросистемы для навесного оборудования | МПа | 18 | 18 | 18 | |
| 8.3 | Расход гидравлического масла навесным оборудованием | л/мин | 40 | 40 | 40 | |
| 8.4 | Уровень шума | дБ(А) | 68 | 68 | 68 | 
| Высота подъема h3 (мм) | Высота свободного подъема h2 (мм) | Габаритная высота при сложенной мачте h1 (мм) | Габаритная высота при поднятой мачте h4 (мм) | |
| TX (с функцией свободного подъема (FFL) | 4500 | 1340 | 2260 | 5420 | 
| 4920 | 1495 | 2415 | 5840 | |
| 6500 | 2020 | 2940 | 7420 | |
| 7500 | 2354 | 3274 | 8420 | |
| 8500 | 2686 | 3606 | 9420 | |
| 9500 | 3020 | 3940 | 10420 | |
| 10500 | 3354 | 4274 | 11420 | 
| Высота подъема h3 (мм) | Высота свободного подъема h2 (мм) | Габаритная высота при сложенной мачте h1 (мм) | Габаритная высота при поднятой мачте h4 (мм) | |
| TX (с функцией свободного подъема (FFL) | 4500 | 1340 | 2260 | 5420 | 
| 4920 | 1495 | 2415 | 5840 | |
| 6500 | 2020 | 2940 | 7420 | |
| 7500 | 2354 | 3274 | 8420 | |
| 8500 | 2686 | 3606 | 9420 | |
| 9500 | 3020 | 3940 | 10420 | |
| 10500 | 3354 | 4274 | 11420 | 
| Высота подъема h3 (мм) | Высота свободного подъема h2 (мм) | Габаритная высота при сложенной мачте h1 (мм) | Габаритная высота при поднятой мачте h4 (мм) | |
| TX (с функцией свободного подъема (FFL) | 4500 | 1340 | 2260 | 5420 | 
| 4920 | 1495 | 2415 | 5840 | |
| 6500 | 2020 | 2940 | 7420 | |
| 7500 | 2354 | 3274 | 8420 | |
| 8500 | 2686 | 3606 | 9420 | |
| 9500 | 3020 | 3940 | 10420 | |
| 10500 | 3354 | 4274 | 11420 | 
 
                                 
                                 
                                