 
     
                             
                             
                             
                            Подъёмные стационарные электрические столы Noblelift HTF-U — это современное решение для складов, производственных цехов, логистических комплексов и сервисных зон. Особенность конструкции заключается в U-образной платформе, которая позволяет использовать оборудование вместе с гидравлическими тележками без дополнительных рамп и подъёмников. Это значительно ускоряет процессы загрузки и разгрузки и делает работу более удобной.
Подъемные столы HTF-U отличаются надежной стальной конструкцией, устойчивостью при работе с тяжелыми грузами и продуманной системой безопасности. Электропривод обеспечивает плавный и стабильный подъем, а эргономичный пульт управления делает эксплуатацию максимально простой. Благодаря компактному дизайну и низкому профилю, оборудование легко интегрируется в рабочие процессы и подходит для интенсивной ежедневной эксплуатации.
 
                             
                            | Основные параметры | 1.2 | Модель | HTF-U10 | |
| 1.5 | Грузоподъемность | Q (кг) | 1000 | |
| Массы | 2.1 | Масса | кг | 235 | 
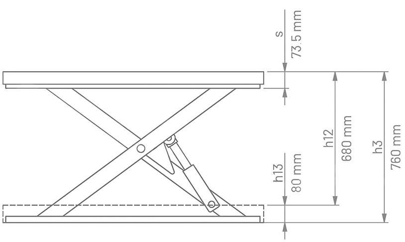
| Размеры | Минимальная высота платформы | h13 (мм) | 80 | |
| Максимальная высота платформы | h3 (мм) | 760 | ||
| Размер платформы | ДхШхВ(мм) | 1450х1140 | ||
| Характеристики | Время подъема платформы с грузом | с | 18 | |
| Скорость подъема платформы с грузом/ без груза | мм/с | 42 / — | ||
| Скорость снижения платформы с грузом/ без груза | мм/с | 48 / — | ||
| Параметры электрической системы | 6.2 | Мощность двигателя подъема | кВт | 0,75 | 
| Характеристики двигателя подъема | 380В, 50Гц, трехфазный | 
 
                                 
                                