 
     
                             
                             
                             
                             
                             
                            Подъёмные стационарные электрические столы Noblelift HIW — это надёжные и универсальные электрические ножничные подъемные столы, предназначенные для тяжёлых условий эксплуатации в складах, логистических центрах и производственных зонах. Эти столы легко монтируются как на ровной поверхности, так и в приямках, что обеспечивает гибкое применение в различных производственных конфигурациях.
HIW-столы оснащены прочной ножничной конструкцией с усиленными направляющими, что обеспечивает безопасное и стабильное перемещение даже больших грузов. Управление осуществляется через внешний пульт с аварийным стопом и защитой от несанкционированного использования, что повышает уровень безопасности и удобства в работе
 
                             
                            | Основные параметры | 1.2 | Модель | HIW1.0 | HIW2.0 | HIW3.0 | HIW4.0 | HIW20A | HIW30A | HIW20B | HIW30B | |
| 1.5 | Грузоподъемность | Q (кг) | 500 | 1000 | 3000 | 2000 | 2000 | 3000 | 2000 | 3000 | |
| Массы | 2.1 | Масса | кг | 160 | 220 | 320 | 280 | 575 | 657 | 626 | 720 | 
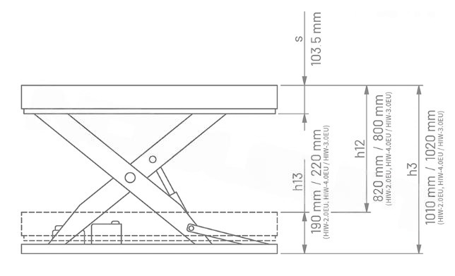
| Размеры | Минимальная высота платформы | h13 (мм) | 190 | 190 | 220 | 190 | 250 | 300 | 250 | 300 | |
| Максимальная высота платформы | h3 (мм) | 1010 | 1010 | 1020 | 1010 | 1550 | 1600 | 1850 | 1900 | ||
| Размер платформы | ДхШхВ(мм) | 1300х800 | 1300х800 | 1300х800 | 1300х800 | 2000×1500 | 2000х1500 | 2200×1500 | 2200×1500 | ||
| Характеристики | Время подъема платформы с грузом | с | 15 | 25 | 26 | 40 | 35 | 40 | 40 | 50 | |
| Скорость подъема платформы с грузом/ без груза | мм/с | 55 / — | 40 / — | 30 / — | 22 / — | 37 / — | 32 / — | 40 / — | 32 / — | ||
| Скорость снижения платформы с грузом/ без груза | мм/с | 40 / — | 35 / — | 40 / — | 33 / — | 43 / — | 37 / — | 47 / — | 37 / — | ||
| Параметры электрической системы | 6.2 | Мощность двигателя подъема | кВт | 0,75 | 0,75 | 1,5 | 0,75 | 1,5 | 1,5 | 1,5 | 1,5 | 
| Характеристики двигателя подъема | 380В, 50Гц, трехфазный | 380В, 50Гц, трехфазный | 380В, 50Гц, трехфазный | 380В, 50Гц, трехфазный | 380В, 50Гц, трехфазный | 380В, 50Гц, трехфазный | 380В, 50Гц, трехфазный | 380В, 50Гц, трехфазный | 
 
                                 
                                 
                                