Noblelift OPH12/OPH12K – Вертикальный комплектовщик заказов - Noblelift-Belarus.by
Корзина (0)
Видео
Добавить в сравнение
0
Выбрать конфигурацию
Модель:
OPH12
OPH12K
Мачта:
Доставка
Мы готовы помочь в организации доставки груза надежной транспортной компанией по всей Беларуси!
При оформлении доставки согласуйте с вашим менеджером:
Адрес и дату доставки;
Вид транспорта;
Стоимость;
Способы оплаты;
Где посмотреть
Склад: 223060, Минская область, Минский район, Новодворский с-с, район д.Большое Стиклево 30/2
Финальная цена
Формируется в зависимости от выбора комплектующих. Более подробную цену можно узнать оставив заявку на создание коммерческого предложения. Наши менеджеры оперативно обработают ваш запрос и свяжутся с вами для уточнения деталей

Noblelift OPH12/OPH12K – Вертикальный комплектовщик заказов

Вертикальный подборщик заказов Noblelift OPH12 / OPH12K — это надёжная и современная техника для быстрого и безопасного комплектования заказов на складах, в логистических центрах и торговых объектах. Модель сочетает в себе высокую грузоподъёмность, устойчивую конструкцию и передовые системы безопасности. Платформа оператора обеспечивает подъём на значительную высоту с грузом до 120 кг, что позволяет эффективно работать даже на верхних ярусах стеллажей. Компактные размеры и продуманная эргономика делают технику удобной в эксплуатации в узких проходах и ограниченных пространствах, а энергоэффективный привод гарантирует продолжительное время работы от одного заряда.

Основные технические параметры
Технические параметры базовой модели
Основные параметры  1.2  Модель  OPH12  OPH12K
 1.3  Привод: электрический (тип: аккумулятор, сеть,…), дизельный, бензиновый, газовый  Электрический (аккумулятор)  Электрический (аккумулятор)
 1.4  Положение оператора  На платформе  На платформе
 1.5  Грузоподъемность  Q (кг)  1200  1200
 1.6  Центр загрузки  c (мм)  600  600
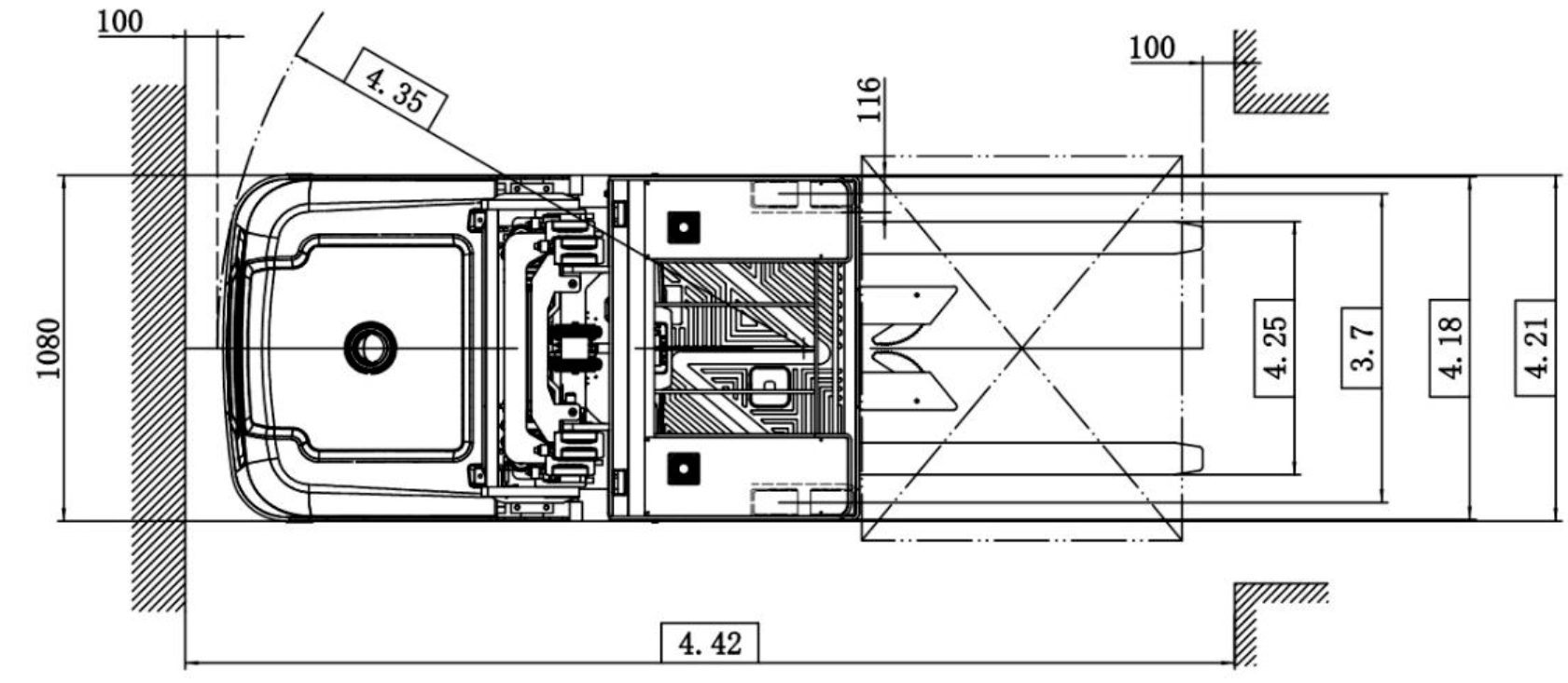
 1.8  Расстояние от центра оси до вил  x (мм)  175  175
 1.9  Колесная база  y (мм)  1576  1576
Массы  2.1  Масса  кг  3610 (3640, 3760)  4065 (4170, 4275)
 2.2  Нагрузка на переднюю/заднюю ось с грузом  кг  1360/3450 (1367/3473, 1438/3522)  1548/3717 (1595/3775, 1653/3822)
 2.3  Нагрузка на переднюю/заднюю ось без груза  кг  2075/1535 (2088/1552, 2165/1595)  2248/1817 (2305/1865, 2410/1865)
Колеса, ходовая часть  3.1  Тип колес  Полиуретан (PU)  Полиуретан (PU)
 3.2  Размер передних (ведущих) колес  Ø343×140  Ø343×140
 3.3  Размер задних колес  Ø152×74  Ø152×74
 3.5  Количество колес спереди/сзади (х-ведущие)  1x/4  1x/4
 3.6  Колея передних колес  b10 (мм)  —  —
 3.7  Колея задних колес  b11 (мм)  964  1304
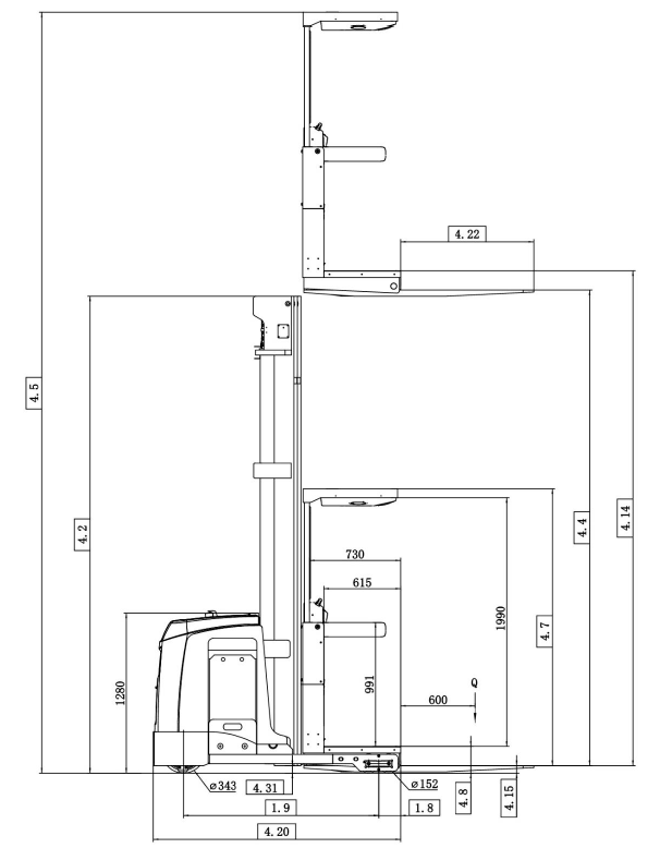
Размеры  4.2  Габаритная высота (min)  h1 (мм)  2315/2415/2815  3145/3481/3815
 4.3  Свободный подъем  h2 (мм)  1665/1765/2165  2495/2831/3165
 4.4  Высота подъема  h3 (мм)  4500/4800/6000  7000/8000/9000
 4.5  Габаритная высота (max)  h4 (мм)  6715/7015/8215  9215/10215/11215
 4.7  Высота по защитному ограждению (кабине)  h6 (мм)  2275  2275
 4.8  Высота сиденья  h7 (мм)  150  150
 4.11  Дополнительный подъем  h9 (мм)  —  —
 4.14  Высота платформы оператора (max)  h23 (мм)  1080  1420
 4.15  Высота вил в нижнем положении  h13 (мм)  60  60
 4.20  Длина до фронта вил  l2 (мм)  1985  1985
 4.21  Общая ширина  b1 (мм)  1080/ 1070  1080/ 1420
 4.21а  Общая ширина платформы оператора  b9 (мм)  1070  1420
 4.22  Размеры вил  s/e/l (мм)  50/100/1145  50/100/1145
 4.25  Ширина установки вил  b5 (мм)  610-790  610-790
 4.31  Дорожный просвет под мачтой  m1 (мм)  60  60
 4.33  Ширина прохода с паллетой 1000×1200  Ast (мм)  1400  1620
 4.34  Ширина прохода с паллетой 800×1200  Ast (мм)  1300  1620
 4.35  Радиус разворота  Wa (мм)  1830  1830
Характеристики  5.1  Скорость движения (с грузом/ без груза)  км/ч  9  9
 5.2  Скорость подъема (с грузом/ без груза)  мм/с  0,15/0,23  0,15/0,23
 5.3  Скорость движения вил вниз (с грузом/ без груза)  мм/с  0,30/0,30  0,30/0,30
 5.10  Тормозная система  Электромагнитный тормоз, рекуперативный  Электромагнитный тормоз, рекуперативный
Параметры электрической системы  6.1  Мощность двигателя движения  кВт  3,9  3,9
 6.2  Мощность двигателя подъема  кВт  24/ 6,4 (опция 48/ 8,2)  24/ 6,4 (опция 48/ 8,2)
 6.4  Напряжение питания, номинальная емкость АКБ  В/ А∙ч  св.-кисл.: 24/ 1000 (48/ 420) Li-Ion: 24/ 560 (48/ 400)  св.-кисл.: 24/ 1000 (48/ 420) Li-Ion: 24/ 560 (48/ 400)
 6.5  Масса АКБ  кг  810  810
 Размеры АКБ, ДxШxВ  мм  375х975х785  375х975х785
Другое  8.1  Тип управления ходом  AC-speed control  AC-speed control
*Данные согласно VDI 2198. Производитель оставляет право вносить изменения в конструкцию техники
Полезные файлы
pdf
Брошюра
pdf
Каталог запчастей (EN)
pdf
Руководство (EN)
Повышенная грузоподъёмность и рабочая высота
Платформа рассчитана на подъём до 120 кг, что позволяет оператору безопасно перемещать и комплектовать заказы на высоте. Это особенно важно для складов с многоярусной системой хранения, где требуется доступ к верхним полкам.
Компактные габариты и манёвренность
Благодаря минимальному радиусу поворота и компактной конструкции модель легко перемещается между стеллажами и в узких коридорах. Возможность проезда через стандартные дверные проёмы и использования в лифтах делает технику универсальной для различных объектов.
Высокий уровень безопасности
Система управления двумя руками, автоматическое торможение и защита от несанкционированного доступа предотвращают аварийные ситуации. Дополнительные датчики следят за устойчивостью и корректной работой оборудования, обеспечивая оператору уверенность на высоте.
Энергоэффективность и простое обслуживание
Экономичный электрический привод обеспечивает долгую работу от одного заряда, а встроенное зарядное устройство упрощает процесс подзарядки. Лёгкий доступ к аккумулятору и основным компонентам сокращает время на техобслуживание и снижает эксплуатационные расходы.
Select the fields to be shown. Others will be hidden. Drag and drop to rearrange the order.
  • Image
  • Additional information
Click outside to hide the comparison bar
Compare